Watertight Expansion Joints and Construction Sealants by EMSEAL

CAD Library: Emshield® DFR-FP

Joint Sizes with * have 3D .DWF files available.

BIM files are also available for these products in our BIM Library.

Please consult EMSEAL for updates to product configuration and other assembly components.

DFR2_FP_0400_75_U-90_UPTURN DFR-FP System 2 Hour Firerated Inside Vertical Plane Universal 90

DFR-FP System 2-Hour Fire-Rated Upturn Universal-90 with 3 inch Leg Height 4 inch | 100mm

Download DWG Download PDF
DFR2_FP_0400_75_HORIZONTAL_TRANS DFR-FP System 2 Hour Firerated Horizontal Transition

DFR-FP System 2-Hour Fire-Rated Filed Fabricated Horizontal Transition with 3 inch Leg Height 4 inch | 100mm

Download DWG Download PDF
DFR2_FP_0400_75_DW_CONC DFR-FP System 2 Hour Firerated Deck to Wall Split Slab

DFR-FP System 2-Hour Fire-Rated Deck-to-Wall Split Slab with 3 inch Leg Height 4 inch | 100mm

Download DWG Download PDF
DFR2_FP_0400_75_DD_CONC DFR-FP System 2 Hour Firerated Deck to Deck Split Slab

DFR-FP System 2-Hour Fire-Rated Deck-to-Deck Split Slab with 3 inch Leg Height 4 inch | 100mm

Download DWG Download PDF
DFR2_FP_0400_60_U-90_UPTURN DFR-FP System 2 Hour Firerated Inside Vertical Plane Universal 90

DFR-FP System 2-Hour Fire-Rated Upturn Universal-90 with 2 3/8 inch Leg Height 4 inch | 100mm

Download DWG Download PDF
DFR2_FP_0400_60_HORIZONTAL_TRANS DFR-FP System 2 Hour Firerated Horizontal Transition

DFR-FP System 2-Hour Fire-Rated Filed Fabricated Horizontal Transition with 2 3/8 inch Leg Height 4 inch | 100mm

Download DWG Download PDF
DFR2_FP_0400_60_DW_CONC DFR-FP System 2 Hour Firerated Deck to Wall Split Slab

DFR-FP System 2-Hour Fire-Rated Deck-to-Wall Split Slab with 2 3/8 inch Leg Height 4 inch | 100mm

Download DWG Download PDF
DFR2_FP_0400_60_DD_CONC DFR-FP System 2 Hour Firerated Deck to Deck Split Slab

DFR-FP System 2-Hour Fire-Rated Deck-to-Deck Split Slab with 2 3/8 inch Leg Height 4 inch | 100mm

Download DWG Download PDF
DFR2_FP_0400_25_U-90_UPTURN DFR-FP System 2 Hour Firerated Inside Vertical Plane Universal 90

DFR-FP System 2-Hour Fire-Rated Upturn Universal-90 with 1 inch Leg Height 4 inch | 100mm

Download DWG Download PDF
DFR2_FP_0400_25_HORIZONTAL_TRANS DFR-FP System 2 Hour Firerated Horizontal Transition

DFR-FP System 2-Hour Fire-Rated Filed Fabricated Horizontal Transition with 1 inch Leg Height 4 inch | 100mm

Download DWG Download PDF
DFR2_FP_0400_25_DW_CONC DFR-FP System 2 Hour Firerated Deck to Wall Split Slab

DFR-FP System 2-Hour Fire-Rated Deck-to-Wall Split Slab with 1 inch Leg Height 4 inch | 100mm

Download DWG Download PDF
DFR2_FP_0400_25_DD_CONC DFR-FP System 2 Hour Firerated Deck to Deck Split Slab

DFR-FP System 2-Hour Fire-Rated Deck-to-Deck Split Slab with 1 inch Leg Height 4 inch | 100mm

Download DWG Download PDF
DFR2_FP_0375_75_U-90_UPTURN DFR-FP System 2 Hour Firerated Inside Vertical Plane Universal 90

DFR-FP System 2-Hour Fire-Rated Upturn Universal-90 with 3 inch Leg Height 3 3/4 inch | 95mm

Download DWG Download PDF
DFR2_FP_0375_75_HORIZONTAL_TRANS DFR-FP System 2 Hour Firerated Horizontal Transition

DFR-FP System 2-Hour Fire-Rated Filed Fabricated Horizontal Transition with 3 inch Leg Height 3 3/4 inch | 95mm

Download DWG Download PDF
DFR2_FP_0375_75_DW_CONC DFR-FP System 2 Hour Firerated Deck to Wall Split Slab

DFR-FP System 2-Hour Fire-Rated Deck-to-Wall Split Slab with 3 inch Leg Height 3 3/4 inch | 95mm

Download DWG Download PDF
DFR2_FP_0375_75_DD_CONC DFR-FP System 2 Hour Firerated Deck to Deck Split Slab

DFR-FP System 2-Hour Fire-Rated Deck-to-Deck Split Slab with 3 inch Leg Height 3 3/4 inch | 95mm

Download DWG Download PDF
DFR2_FP_0375_60_U-90_UPTURN DFR-FP System 2 Hour Firerated Inside Vertical Plane Universal 90

DFR-FP System 2-Hour Fire-Rated Upturn Universal-90 with 2 3/8 inch Leg Height 3 3/4 inch | 95mm

Download DWG Download PDF
DFR2_FP_0375_60_HORIZONTAL_TRANS DFR-FP System 2 Hour Firerated Horizontal Transition

DFR-FP System 2-Hour Fire-Rated Filed Fabricated Horizontal Transition with 2 3/8 inch Leg Height 3 3/4 inch | 95mm

Download DWG Download PDF
DFR2_FP_0375_60_DW_CONC DFR-FP System 2 Hour Firerated Deck to Wall Split Slab

DFR-FP System 2-Hour Fire-Rated Deck-to-Wall Split Slab with 2 3/8 inch Leg Height 3 3/4 inch | 95mm

Download DWG Download PDF
DFR2_FP_0375_60_DD_CONC DFR-FP System 2 Hour Firerated Deck to Deck Split Slab

DFR-FP System 2-Hour Fire-Rated Deck-to-Deck Split Slab with 2 3/8 inch Leg Height 3 3/4 inch | 95mm

Download DWG Download PDF
DFR2_FP_0375_25_U-90_UPTURN DFR-FP System 2 Hour Firerated Inside Vertical Plane Universal 90

DFR-FP System 2-Hour Fire-Rated Upturn Universal-90 with 1 inch Leg Height 3 3/4 inch | 95mm

Download DWG Download PDF
DFR2_FP_0375_25_HORIZONTAL_TRANS DFR-FP System 2 Hour Firerated Horizontal Transition

DFR-FP System 2-Hour Fire-Rated Filed Fabricated Horizontal Transition with 1 inch Leg Height 3 3/4 inch | 95mm

Download DWG Download PDF
DFR2_FP_0375_25_DW_CONC-DFR-FP-System-2-Hour-Firerated-Deck-to-Wall-Split-Slab

DFR-FP System 2-Hour Fire-Rated Deck-to-Wall Split Slab with 1 inch Leg Height 3 3/4 inch | 95mm

Download DWG Download PDF
DFR2_FP_0375_25_DD_CONC-DFR-FP-System-2-Hour-Firerated-Deck-to-Deck-Split-Slab

DFR-FP System 2-Hour Fire-Rated Deck-to-Deck Split Slab with 1 inch Leg Height 3 3/4 inch | 95mm

Download DWG Download PDF
DFR2_FP_0350_75_U-90_UPTURN DFR-FP System 2 Hour Firerated Inside Vertical Plane Universal 90

DFR-FP System 2-Hour Fire-Rated Upturn Universal-90 with 3 inch Leg Height 3 1/2 inch | 90mm

Download DWG Download PDF
DFR2_FP_0350_75_HORIZONTAL_TRANS DFR-FP System 2 Hour Firerated Horizontal Transition

DFR-FP System 2-Hour Fire-Rated Filed Fabricated Horizontal Transition with 3 inch Leg Height 3 1/2 inch | 90mm

Download DWG Download PDF
DFR2_FP_0350_75_DW_CONC DFR-FP System 2 Hour Firerated Deck to Wall Split Slab

DFR-FP System 2-Hour Fire-Rated Deck-to-Wall Split Slab with 3 inch Leg Height 3 1/2 inch | 90mm

Download DWG Download PDF
DFR2_FP_0350_75_DD_CONC DFR-FP System 2 Hour Firerated Deck to Deck Split Slab

DFR-FP System 2-Hour Fire-Rated Deck-to-Deck Split Slab with 3 inch Leg Height 3 1/2 inch | 90mm

Download DWG Download PDF
DFR2_FP_0350_60_U-90_UPTURN DFR-FP System 2 Hour Firerated Inside Vertical Plane Universal 90

DFR-FP System 2-Hour Fire-Rated Upturn Universal-90 with 2 3/8 inch Leg Height 3 1/2 inch | 90mm

Download DWG Download PDF
DFR2_FP_0350_60_HORIZONTAL_TRANS DFR-FP System 2 Hour Firerated Horizontal Transition

DFR-FP System 2-Hour Fire-Rated Filed Fabricated Horizontal Transition with 2 3/8 inch Leg Height 3 1/2 inch | 90mm

Download DWG Download PDF
DFR2_FP_0350_60_DW_CONC DFR-FP System 2 Hour Firerated Deck to Wall Split Slab

DFR-FP System 2-Hour Fire-Rated Deck-to-Wall Split Slab with 2 3/8 inch Leg Height 3 1/2 inch | 90mm

Download DWG Download PDF
DFR2_FP_0350_60_DD_CONC DFR-FP System 2 Hour Firerated Deck to Deck Split Slab

DFR-FP System 2-Hour Fire-Rated Deck-to-Deck Split Slab with 2 3/8 inch Leg Height 3 1/2 inch | 90mm

Download DWG Download PDF
DFR2_FP_0350_25_U-90_UPTURN DFR-FP System 2 Hour Firerated Inside Vertical Plane Universal 90

DFR-FP System 2-Hour Fire-Rated Upturn Universal-90 with 1 inch Leg Height 3 1/2 inch | 90mm

Download DWG Download PDF
DFR2_FP_0350_25_HORIZONTAL_TRANS DFR-FP System 2 Hour Firerated Horizontal Transition

DFR-FP System 2-Hour Fire-Rated Filed Fabricated Horizontal Transition with 1 inch Leg Height 3 1/2 inch | 90mm

Download DWG Download PDF
DFR2_FP_0350_25_DW_CONC DFR-FP System 2 Hour Firerated Deck to Wall Split Slab

DFR-FP System 2-Hour Fire-Rated Deck-to-Wall Split Slab with 1 inch Leg Height 3 1/2 inch | 90mm

Download DWG Download PDF
DFR2_FP_0350_25_DD_CONC DFR-FP System 2 Hour Firerated Deck to Deck Split Slab

DFR-FP System 2-Hour Fire-Rated Deck-to-Deck Split Slab with 1 inch Leg Height 3 1/2 inch | 90mm

Download DWG Download PDF
DFR2_FP_0325_75_U-90_UPTURN DFR-FP System 2 Hour Firerated Inside Vertical Plane Universal 90

DFR-FP System 2-Hour Fire-Rated Upturn Universal-90 with 3 inch Leg Height 3 1/4 inch | 85mm

Download DWG Download PDF
DFR2_FP_0325_75_HORIZONTAL_TRANS DFR-FP System 2 Hour Firerated Horizontal Transition

DFR-FP System 2-Hour Fire-Rated Filed Fabricated Horizontal Transition with 3 inch Leg Height 3 1/4 inch | 85mm

Download DWG Download PDF
DFR2_FP_0325_75_DW_CONC DFR-FP System 2 Hour Firerated Deck to Wall Split Slab

DFR-FP System 2-Hour Fire-Rated Deck-to-Wall Split Slab with 3 inch Leg Height 3 1/4 inch | 85mm

Download DWG Download PDF
DFR2_FP_0325_75_DD_CONC DFR-FP System 2 Hour Firerated Deck to Deck Split Slab

DFR-FP System 2-Hour Fire-Rated Deck-to-Deck Split Slab with 3 inch Leg Height 3 1/4 inch | 85mm

Download DWG Download PDF
DFR2_FP_0325_60_U-90_UPTURN DFR-FP System 2 Hour Firerated Inside Vertical Plane Universal 90

DFR-FP System 2-Hour Fire-Rated Upturn Universal-90 with 2 3/8 inch Leg Height 3 1/4 inch | 85mm

Download DWG Download PDF
DFR2_FP_0325_60_HORIZONTAL_TRANS DFR-FP System 2 Hour Firerated Horizontal Transition

DFR-FP System 2-Hour Fire-Rated Filed Fabricated Horizontal Transition with 2 3/8 inch Leg Height 3 1/4 inch | 85mm

Download DWG Download PDF
DFR2_FP_0325_60_DW_CONC DFR-FP System 2 Hour Firerated Deck to Wall Split Slab

DFR-FP System 2-Hour Fire-Rated Deck-to-Wall Split Slab with 2 3/8 inch Leg Height 3 1/4 inch | 85mm

Download DWG Download PDF
DFR2_FP_0325_60_DD_CONC DFR-FP System 2 Hour Firerated Deck to Deck Split Slab

DFR-FP System 2-Hour Fire-Rated Deck-to-Deck Split Slab with 2 3/8 inch Leg Height 3 1/4 inch | 85mm

Download DWG Download PDF
DFR2_FP_0325_25_U-90_UPTURN DFR-FP System 2 Hour Firerated Inside Vertical Plane Universal 90

DFR-FP System 2-Hour Fire-Rated Upturn Universal-90 with 1 inch Leg Height 3 1/4 inch | 85mm

Download DWG Download PDF
DFR2_FP_0325_25_HORIZONTAL_TRANS DFR-FP System 2 Hour Firerated Horizontal Transition

DFR-FP System 2-Hour Fire-Rated Filed Fabricated Horizontal Transition with 1 inch Leg Height 3 1/4 inch | 85mm

Download DWG Download PDF
DFR2_FP_0325_25_DW_CONC DFR-FP System 2 Hour Firerated Deck to Wall Split Slab

DFR-FP System 2-Hour Fire-Rated Deck-to-Wall Split Slab with 1 inch Leg Height 3 1/4 inch | 85mm

Download DWG Download PDF
DFR2_FP_0325_25_DD_CONC DFR-FP System 2 Hour Firerated Deck to Deck Split Slab

DFR-FP System 2-Hour Fire-Rated Deck-to-Deck Split Slab with 1 inch Leg Height 3 1/4 inch | 85mm

Download DWG Download PDF
DFR2_FP_0300_75_U-90_UPTURN DFR-FP System 2 Hour Firerated Inside Vertical Plane Universal 90

DFR-FP System 2-Hour Fire-Rated Upturn Universal-90 with 3 inch Leg Height 3 inch | 75mm

Download DWG Download PDF
DFR2_FP_0300_75_HORIZONTAL_TRANS DFR-FP System 2 Hour Firerated Horizontal Transition

DFR-FP System 2-Hour Fire-Rated Filed Fabricated Horizontal Transition with 3 inch Leg Height 3 inch | 75mm

Download DWG Download PDF
DFR2_FP_0300_75_DW_CONC DFR-FP System 2 Hour Firerated Deck to Wall Split Slab

DFR-FP System 2-Hour Fire-Rated Deck-to-Wall Split Slab with 3 inch Leg Height 3 inch | 75mm

Download DWG Download PDF
DFR2_FP_0300_75_DD_CONC DFR-FP System 2 Hour Firerated Deck to Deck Split Slab

DFR-FP System 2-Hour Fire-Rated Deck-to-Deck Split Slab with 3 inch Leg Height 3 inch | 75mm

Download DWG Download PDF
DFR2_FP_0300_60_U-90_UPTURN DFR-FP System 2 Hour Firerated Inside Vertical Plane Universal 90

DFR-FP System 2-Hour Fire-Rated Upturn Universal-90 with 2 3/8 inch Leg Height 3 inch | 75mm

Download DWG Download PDF
DFR2_FP_0300_60_HORIZONTAL_TRANS DFR-FP System 2 Hour Firerated Horizontal Transition

DFR-FP System 2-Hour Fire-Rated Filed Fabricated Horizontal Transition with 2 3/8 inch Leg Height 3 inch | 75mm

Download DWG Download PDF
DFR2_FP_0300_60_DW_CONC DFR-FP System 2 Hour Firerated Deck to Wall Split Slab

DFR-FP System 2-Hour Fire-Rated Deck-to-Wall Split Slab with 2 3/8 inch Leg Height 3 inch | 75mm

Download DWG Download PDF
DFR2_FP_0300_60_DD_CONC DFR-FP System 2 Hour Firerated Deck to Deck Split Slab

DFR-FP System 2-Hour Fire-Rated Deck-to-Deck Split Slab with 2 3/8 inch Leg Height 3 inch | 75mm

Download DWG Download PDF
DFR2_FP_0300_25_U-90_UPTURN DFR-FP System 2 Hour Firerated Inside Vertical Plane Universal 90

DFR-FP System 2-Hour Fire-Rated Upturn Universal-90 with 1 inch Leg Height 3 inch | 75mm

Download DWG Download PDF
DFR2_FP_0300_25_HORIZONTAL_TRANS DFR-FP System 2 Hour Firerated Horizontal Transition

DFR-FP System 2-Hour Fire-Rated Filed Fabricated Horizontal Transition with 1 inch Leg Height 3 inch | 75mm

Download DWG Download PDF
DFR2_FP_0300_25_DW_CONC DFR-FP System 2 Hour Firerated Deck to Wall Split Slab

DFR-FP System 2-Hour Fire-Rated Deck-to-Wall Split Slab with 1 inch Leg Height 3 inch | 75mm

Download DWG Download PDF
DFR2_FP_0300_25_DD_CONC DFR-FP System 2 Hour Firerated Deck to Deck Split Slab

DFR-FP System 2-Hour Fire-Rated Deck-to-Deck Split Slab with 1 inch Leg Height 3 inch | 75mm

Download DWG Download PDF
DFR2_FP_0275_75_U-90_UPTURN DFR-FP System 2 Hour Firerated Inside Vertical Plane Universal 90

DFR-FP System 2-Hour Fire-Rated Upturn Universal-90 with 3 inch Leg Height 2 3/4 inch | 70mm

Download DWG Download PDF
DFR2_FP_0275_75_HORIZONTAL_TRANS DFR-FP System 2 Hour Firerated Horizontal Transition

DFR-FP System 2-Hour Fire-Rated Filed Fabricated Horizontal Transition with 3 inch Leg Height 2 3/4 inch | 70mm

Download DWG Download PDF
DFR2_FP_0275_75_DW_CONC DFR-FP System 2 Hour Firerated Deck to Wall Split Slab

DFR-FP System 2-Hour Fire-Rated Deck-to-Wall Split Slab with 3 inch Leg Height 2 3/4 inch | 70mm

Download DWG Download PDF
DFR2_FP_0275_75_DD_CONC DFR-FP System 2 Hour Firerated Deck to Deck Split Slab

DFR-FP System 2-Hour Fire-Rated Deck-to-Deck Split Slab with 3 inch Leg Height 2 3/4 inch | 70mm

Download DWG Download PDF
DFR2_FP_0275_60_U-90_UPTURN DFR-FP System 2 Hour Firerated Inside Vertical Plane Universal 90

DFR-FP System 2-Hour Fire-Rated Upturn Universal-90 with 2 3/8 inch Leg Height 2 3/4 inch | 70mm

Download DWG Download PDF
DFR2_FP_0275_60_HORIZONTAL_TRANS DFR-FP System 2 Hour Firerated Horizontal Transition

DFR-FP System 2-Hour Fire-Rated Filed Fabricated Horizontal Transition with 2 3/8 inch Leg Height 2 3/4 inch | 70mm

Download DWG Download PDF
DFR2_FP_0275_60_DW_CONC DFR-FP System 2 Hour Firerated Deck to Wall Split Slab

DFR-FP System 2-Hour Fire-Rated Deck-to-Wall Split Slab with 2 3/8 inch Leg Height 2 3/4 inch | 70mm

Download DWG Download PDF
DFR2_FP_0275_60_DD_CONC DFR-FP System 2 Hour Firerated Deck to Deck Split Slab

DFR-FP System 2-Hour Fire-Rated Deck-to-Deck Split Slab with 2 3/8 inch Leg Height 2 3/4 inch | 70mm

Download DWG Download PDF
DFR2_FP_0275_25_U-90_UPTURN DFR-FP System 2 Hour Firerated Inside Vertical Plane Universal 90

DFR-FP System 2-Hour Fire-Rated Upturn Universal-90 with 1 inch Leg Height 2 3/4 inch | 70mm

Download DWG Download PDF
DFR2_FP_0275_25_HORIZONTAL_TRANS DFR-FP System 2 Hour Firerated Horizontal Transition

DFR-FP System 2-Hour Fire-Rated Filed Fabricated Horizontal Transition with 1 inch Leg Height 2 3/4 inch | 70mm

Download DWG Download PDF
DFR2_FP_0275_25_DW_CONC DFR-FP System 2 Hour Firerated Deck to Wall Split Slab

DFR-FP System 2-Hour Fire-Rated Deck-to-Wall Split Slab with 1 inch Leg Height 2 3/4 inch | 70mm

Download DWG Download PDF
DFR2_FP_0275_25_DD_CONC DFR-FP System 2 Hour Firerated Deck to Deck Split Slab

DFR-FP System 2-Hour Fire-Rated Deck-to-Deck Split Slab with 1 inch Leg Height 2 3/4 inch | 70mm

Download DWG Download PDF
DFR2_FP_0250_75_U-90_UPTURN DFR-FP System 2 Hour Firerated Inside Vertical Plane Universal 90

DFR-FP System 2-Hour Fire-Rated Upturn Universal-90 with 3 inch Leg Height 2 1/2 inch | 65mm

Download DWG Download PDF
DFR2_FP_0250_75_HORIZONTAL_TRANS DFR-FP System 2 Hour Firerated Horizontal Transition

DFR-FP System 2-Hour Fire-Rated Filed Fabricated Horizontal Transition with 3 inch Leg Height 2 1/2 inch | 65mm

Download DWG Download PDF
DFR2_FP_0250_75_DW_CONC DFR-FP System 2 Hour Firerated Deck to Wall Split Slab

DFR-FP System 2-Hour Fire-Rated Deck-to-Wall Split Slab with 3 inch Leg Height 2 1/2 inch | 65mm

Download DWG Download PDF
DFR2_FP_0250_75_DD_CONC DFR-FP System 2 Hour Firerated Deck to Deck Split Slab

DFR-FP System 2-Hour Fire-Rated Deck-to-Deck Split Slab with 3 inch Leg Height 2 1/2 inch | 65mm

Download DWG Download PDF
DFR2_FP_0250_60_U-90_UPTURN DFR-FP System 2 Hour Firerated Inside Vertical Plane Universal 90

DFR-FP System 2-Hour Fire-Rated Upturn Universal-90 with 2 3/8 inch Leg Height 2 1/2 inch | 65mm

Download DWG Download PDF
DFR2_FP_0250_60_HORIZONTAL_TRANS DFR-FP System 2 Hour Firerated Horizontal Transition

DFR-FP System 2-Hour Fire-Rated Filed Fabricated Horizontal Transition with 2 3/8 inch Leg Height 2 1/2 inch | 65mm

Download DWG Download PDF
DFR2_FP_0250_60_DW_CONC DFR-FP System 2 Hour Firerated Deck to Wall Split Slab

DFR-FP System 2-Hour Fire-Rated Deck-to-Wall Split Slab with 2 3/8 inch Leg Height 2 1/2 inch | 65mm

Download DWG Download PDF
DFR2_FP_0250_60_DD_CONC DFR-FP System 2 Hour Firerated Deck to Deck Split Slab

DFR-FP System 2-Hour Fire-Rated Deck-to-Deck Split Slab with 2 3/8 inch Leg Height 2 1/2 inch | 65mm

Download DWG Download PDF
DFR2_FP_0250_25_U-90_UPTURN DFR-FP System 2 Hour Firerated Inside Vertical Plane Universal 90

DFR-FP System 2-Hour Fire-Rated Upturn Universal-90 with 1 inch Leg Height 2 1/2 inch | 65mm

Download DWG Download PDF
DFR2_FP_0250_25_HORIZONTAL_TRANS DFR-FP System 2 Hour Firerated Horizontal Transition

DFR-FP System 2-Hour Fire-Rated Filed Fabricated Horizontal Transition with 1 inch Leg Height 2 1/2 inch | 65mm

Download DWG Download PDF
DFR2_FP_0250_25_DW_CONC DFR-FP System 2 Hour Firerated Deck to Wall Split Slab

DFR-FP System 2-Hour Fire-Rated Deck-to-Wall Split Slab with 1 inch Leg Height 2 1/2 inch | 65mm

Download DWG Download PDF
DFR2_FP_0250_25_DD_CONC DFR-FP System 2 Hour Firerated Deck to Deck Split Slab

DFR-FP System 2-Hour Fire-Rated Deck-to-Deck Split Slab with 1 inch Leg Height 2 1/2 inch | 65mm

Download DWG Download PDF
DFR2_FP_0225_75_U-90_UPTURN DFR-FP System 2 Hour Firerated Inside Vertical Plane Universal 90

DFR-FP System 2-Hour Fire-Rated Upturn Universal-90 with 3 inch Leg Height 2 1/4 inch | 55mm

Download DWG Download PDF
DFR2_FP_0225_75_HORIZONTAL_TRANS DFR-FP System 2 Hour Firerated Horizontal Transition

DFR-FP System 2-Hour Fire-Rated Filed Fabricated Horizontal Transition with 3 inch Leg Height 2 1/4 inch | 55mm

Download DWG Download PDF
DFR2_FP_0225_75_DW_CONC DFR-FP System 2 Hour Firerated Deck to Wall Split Slab

DFR-FP System 2-Hour Fire-Rated Deck-to-Wall Split Slab with 3 inch Leg Height 2 1/4 inch | 55mm

Download DWG Download PDF
DFR2_FP_0225_75_DD_CONC DFR-FP System 2 Hour Firerated Deck to Deck Split Slab

DFR-FP System 2-Hour Fire-Rated Deck-to-Deck Split Slab with 3 inch Leg Height 2 1/4 inch | 55mm

Download DWG Download PDF
DFR2_FP_0225_60_U-90_UPTURN DFR-FP System 2 Hour Firerated Inside Vertical Plane Universal 90

DFR-FP System 2-Hour Fire-Rated Upturn Universal-90 with 2 3/8 inch Leg Height 2 1/4 inch | 55mm

Download DWG Download PDF
DFR2_FP_0225_60_HORIZONTAL_TRANS DFR-FP System 2 Hour Firerated Horizontal Transition

DFR-FP System 2-Hour Fire-Rated Filed Fabricated Horizontal Transition with 2 3/8 inch Leg Height 2 1/4 inch | 55mm

Download DWG Download PDF
DFR2_FP_0225_60_DW_CONC DFR-FP System 2 Hour Firerated Deck to Wall Split Slab

DFR-FP System 2-Hour Fire-Rated Deck-to-Wall Split Slab with 2 3/8 inch Leg Height 2 1/4 inch | 55mm

Download DWG Download PDF
DFR2_FP_0225_60_DD_CONC DFR-FP System 2 Hour Firerated Deck to Deck Split Slab

DFR-FP System 2-Hour Fire-Rated Deck-to-Deck Split Slab with 2 3/8 inch Leg Height 2 1/4 inch | 55mm

Download DWG Download PDF
DFR2_FP_0225_25_U-90_UPTURN DFR-FP System 2 Hour Firerated Inside Vertical Plane Universal 90

DFR-FP System 2-Hour Fire-Rated Upturn Universal-90 with 1 inch Leg Height 2 1/4 inch | 55mm

Download DWG Download PDF
DFR2_FP_0225_25_HORIZONTAL_TRANS DFR-FP System 2 Hour Firerated Horizontal Transition

DFR-FP System 2-Hour Fire-Rated Filed Fabricated Horizontal Transition with 1 inch Leg Height 2 1/4 inch | 55mm

Download DWG Download PDF
DFR2_FP_0225_25_DW_CONC DFR-FP System 2 Hour Firerated Deck to Wall Split Slab

DFR-FP System 2-Hour Fire-Rated Deck-to-Wall Split Slab with 1 inch Leg Height 2 1/4 inch | 55mm

Download DWG Download PDF
DFR2_FP_0225_25_DD_CONC DFR-FP System 2 Hour Firerated Deck to Deck Split Slab

DFR-FP System 2-Hour Fire-Rated Deck-to-Deck Split Slab with 1 inch Leg Height 2 1/4 inch | 55mm

Download DWG Download PDF
DFR2_FP_0200_75_HORIZONTAL_TRANS DFR-FP System 2 Hour Firerated Horizontal Transition

DFR-FP System 2-Hour Fire-Rated Filed Fabricated Horizontal Transition with 3 inch Leg Height 2 inch | 50mm

Download DWG Download PDF
DFR2_FP_0200_75_DD_CONC DFR-FP System 2 Hour Firerated Deck to Deck Split Slab

DFR-FP System 2-Hour Fire-Rated Deck-to-Deck Split Slab with 3 inch Leg Height 2 inch | 50mm

Download DWG Download PDF
DFR2_FP_0200_60_U-90_UPTURN DFR-FP System 2 Hour Firerated Inside Vertical Plane Universal 90

DFR-FP System 2-Hour Fire-Rated Upturn Universal-90 with 2 3/8 inch Leg Height 2 inch | 50mm

Download DWG Download PDF
DFR2_FP_0200_60_HORIZONTAL_TRANS DFR-FP System 2 Hour Firerated Horizontal Transition

DFR-FP System 2-Hour Fire-Rated Filed Fabricated Horizontal Transition with 2 3/8 inch Leg Height 2 inch | 50mm

Download DWG Download PDF
DFR2_FP_0200_60_DW_CONC DFR-FP System 2 Hour Firerated Deck to Wall Split Slab

DFR-FP System 2-Hour Fire-Rated Deck-to-Wall Split Slab with 2 3/8 inch Leg Height 2 inch | 50mm

Download DWG Download PDF
DFR2_FP_0200_60_DD_CONC DFR-FP System 2 Hour Firerated Deck to Deck Split Slab

DFR-FP System 2-Hour Fire-Rated Deck-to-Deck Split Slab with 2 3/8 inch Leg Height 2 inch | 50mm

Download DWG Download PDF
DFR2_FP_0200_25_U-90_UPTURN DFR-FP System 2 Hour Firerated Inside Vertical Plane Universal 90

DFR-FP System 2-Hour Fire-Rated Upturn Universal-90 with 1 inch Leg Height 2 inch | 50mm

Download DWG Download PDF
DFR2_FP_0200_25_HORIZONTAL_TRANS DFR-FP System 2 Hour Firerated Horizontal Transition

DFR-FP System 2-Hour Fire-Rated Filed Fabricated Horizontal Transition with 1 inch Leg Height 2 inch | 50mm

Download DWG Download PDF
DFR2_FP_0200_25_DW_CONC DFR-FP System 2 Hour Firerated Deck to Wall Split Slab

DFR-FP System 2-Hour Fire-Rated Deck-to-Wall Split Slab with 1 inch Leg Height 2 inch | 50mm

Download DWG Download PDF
DFR2_FP_0200_25_DD_CONC DFR-FP System 2 Hour Firerated Deck to Deck Split Slab

DFR-FP System 2-Hour Fire-Rated Deck-to-Deck Split Slab with 1 inch Leg Height 2 inch | 50mm

Download DWG Download PDF
DFR2_FP_0175_75_U-90_UPTURN DFR-FP System 2 Hour Firerated Inside Vertical Plane Universal 90

DFR-FP System 2-Hour Fire-Rated Upturn Universal-90 with 3 inch Leg Height 1 3/4 inch | 45mm

Download DWG Download PDF
DFR2_FP_0175_75_HORIZONTAL_TRANS DFR-FP System 2 Hour Firerated Horizontal Transition

DFR-FP System 2-Hour Fire-Rated Filed Fabricated Horizontal Transition with 3 inch Leg Height 1 3/4 inch | 45mm

Download DWG Download PDF
DFR2_FP_0175_75_DW_CONC DFR-FP System 2 Hour Firerated Deck to Wall Split Slab

DFR-FP System 2-Hour Fire-Rated Deck-to-Wall Split Slab with 3 inch Leg Height 1 3/4 inch | 45mm

Download DWG Download PDF
DFR2_FP_0175_75_DD_CONC DFR-FP System 2 Hour Firerated Deck to Deck Split Slab

DFR-FP System 2-Hour Fire-Rated Deck-to-Deck Split Slab with 3 inch Leg Height 1 3/4 inch | 45mm

Download DWG Download PDF
DFR2_FP_0175_60_U-90_UPTURN DFR-FP System 2 Hour Firerated Inside Vertical Plane Universal 90

DFR-FP System 2-Hour Fire-Rated Upturn Universal-90 with 2 3/8 inch Leg Height 1 3/4 inch | 45mm

Download DWG Download PDF
DFR2_FP_0175_60_HORIZONTAL_TRANS DFR-FP System 2 Hour Firerated Horizontal Transition

DFR-FP System 2-Hour Fire-Rated Filed Fabricated Horizontal Transition with 2 3/8 inch Leg Height 1 3/4 inch | 45mm

Download DWG Download PDF
DFR2_FP_0175_60_DW_CONC DFR-FP System 2 Hour Firerated Deck to Wall Split Slab

DFR-FP System 2-Hour Fire-Rated Deck-to-Wall Split Slab with 2 3/8 inch Leg Height 1 3/4 inch | 45mm

Download DWG Download PDF
DFR2_FP_0175_60_DD_CONC DFR-FP System 2 Hour Firerated Deck to Deck Split Slab

DFR-FP System 2-Hour Fire-Rated Deck-to-Deck Split Slab with 2 3/8 inch Leg Height 1 3/4 inch | 45mm

Download DWG Download PDF
DFR2_FP_0175_25_U-90_UPTURN DFR-FP System 2 Hour Firerated Inside Vertical Plane Universal 90

DFR-FP System 2-Hour Fire-Rated Upturn Universal-90 with 1 inch Leg Height 1 3/4 inch | 45mm

Download DWG Download PDF
DFR2_FP_0175_25_HORIZONTAL_TRANS DFR-FP System 2 Hour Firerated Horizontal Transition

DFR-FP System 2-Hour Fire-Rated Filed Fabricated Horizontal Transition with 1 inch Leg Height 1 3/4 inch | 45mm

Download DWG Download PDF
DFR2_FP_0175_25_DW_CONC DFR-FP System 2 Hour Firerated Deck to Wall Split Slab

DFR-FP System 2-Hour Fire-Rated Deck-to-Wall Split Slab with 1 inch Leg Height 1 3/4 inch | 45mm

Download DWG Download PDF
DFR2_FP_0175_25_DD_CONC DFR-FP System 2 Hour Firerated Deck to Deck Split Slab

DFR-FP System 2-Hour Fire-Rated Deck-to-Deck Split Slab with 1 inch Leg Height 1 3/4 inch | 45mm

Download DWG Download PDF
DFR2_FP_0150_75_U-90_UPTURN DFR-FP System 2 Hour Firerated Inside Vertical Plane Universal 90

DFR-FP System 2-Hour Fire-Rated Upturn Universal-90 with 3 inch Leg Height 1 1/2 inch | 40mm

Download DWG Download PDF
DFR2_FP_0150_75_HORIZONTAL_TRANS DFR-FP System 2 Hour Firerated Horizontal Transition

DFR-FP System 2-Hour Fire-Rated Filed Fabricated Horizontal Transition with 3 inch Leg Height 1 1/2 inch | 40mm

Download DWG Download PDF
DFR2_FP_0150_75_DW_CONC DFR-FP System 2 Hour Firerated Deck to Wall Split Slab

DFR-FP System 2-Hour Fire-Rated Deck-to-Wall Split Slab with 3 inch Leg Height 1 1/2 inch | 40mm

Download DWG Download PDF
DFR2_FP_0150_75_DD_CONC DFR-FP System 2 Hour Firerated Deck to Deck Split Slab

DFR-FP System 2-Hour Fire-Rated Deck-to-Deck Split Slab with 3 inch Leg Height 1 1/2 inch | 40mm

Download DWG Download PDF
DFR2_FP_0150_60_U-90_UPTURN DFR-FP System 2 Hour Firerated Inside Vertical Plane Universal 90

DFR-FP System 2-Hour Fire-Rated Upturn Universal-90 with 2 3/8 inch Leg Height 1 1/2 inch | 40mm

Download DWG Download PDF
DFR2_FP_0150_60_HORIZONTAL_TRANS DFR-FP System 2 Hour Firerated Horizontal Transition

DFR-FP System 2-Hour Fire-Rated Filed Fabricated Horizontal Transition with 2 3/8 inch Leg Height 1 1/2 inch | 40mm

Download DWG Download PDF
DFR2_FP_0150_60_DW_CONC DFR-FP System 2 Hour Firerated Deck to Wall Split Slab

DFR-FP System 2-Hour Fire-Rated Deck-to-Wall Split Slab with 2 3/8 inch Leg Height 1 1/2 inch | 40mm

Download DWG Download PDF
DFR2_FP_0150_60_DD_CONC DFR-FP System 2 Hour Firerated Deck to Deck Split Slab

DFR-FP System 2-Hour Fire-Rated Deck-to-Deck Split Slab with 2 3/8 inch Leg Height 1 1/2 inch | 40mm

Download DWG Download PDF
DFR2_FP_0150_25_U-90_UPTURN DFR-FP System 2 Hour Firerated Inside Vertical Plane Universal 90

DFR-FP System 2-Hour Fire-Rated Upturn Universal-90 with 1 inch Leg Height 1 1/2 inch | 40mm

Download DWG Download PDF
DFR2_FP_0150_25_HORIZONTAL_TRANS DFR-FP System 2 Hour Firerated Horizontal Transition

DFR-FP System 2-Hour Fire-Rated Filed Fabricated Horizontal Transition with 1 inch Leg Height 1 1/2 inch | 40mm

Download DWG Download PDF
DFR2_FP_0150_25_DW_CONC DFR-FP System 2 Hour Firerated Deck to Wall Split Slab

DFR-FP System 2-Hour Fire-Rated Deck-to-Wall Split Slab with 1 inch Leg Height 1 1/2 inch | 40mm

Download DWG Download PDF
DFR2_FP_0150_25_DD_CONC DFR-FP System 2 Hour Firerated Deck to Deck Split Slab

DFR-FP System 2-Hour Fire-Rated Deck-to-Deck Split Slab with 1 inch Leg Height 1 1/2 inch | 40mm

Download DWG Download PDF
DFR2_FP_0125_75_U-90_UPTURN DFR-FP System 2 Hour Firerated Inside Vertical Plane Universal 90

DFR-FP System 2-Hour Fire-Rated Upturn Universal-90 with 3 inch Leg Height 1 1/4 inch | 30mm

Download DWG Download PDF
DFR2_FP_0125_75_HORIZONTAL_TRANS DFR-FP System 2 Hour Firerated Horizontal Transition

DFR-FP System 2-Hour Fire-Rated Filed Fabricated Horizontal Transition with 3 inch Leg Height 1 1/4 inch | 30mm

Download DWG Download PDF
DFR2_FP_0125_75_DW_CONC DFR-FP System 2 Hour Firerated Deck to Wall Split Slab

DFR-FP System 2-Hour Fire-Rated Deck-to-Wall Split Slab with 3 inch Leg Height 1 1/4 inch | 30mm

Download DWG Download PDF
DFR2_FP_0125_75_DD_CONC DFR-FP System 2 Hour Firerated Deck to Deck Split Slab

DFR-FP System 2-Hour Fire-Rated Deck-to-Deck Split Slab with 3 inch Leg Height 1 1/4 inch | 30mm

Download DWG Download PDF
DFR2_FP_0125_60_U-90_UPTURN DFR-FP System 2 Hour Firerated Inside Vertical Plane Universal 90

DFR-FP System 2-Hour Fire-Rated Upturn Universal-90 with 2 3/8 inch Leg Height 1 1/4 inch | 30mm

Download DWG Download PDF
DFR2_FP_0125_60_HORIZONTAL_TRANS DFR-FP System 2 Hour Firerated Horizontal Transition

DFR-FP System 2-Hour Fire-Rated Filed Fabricated Horizontal Transition with 2 3/8 inch Leg Height 1 1/4 inch | 30mm

Download DWG Download PDF
DFR2_FP_0125_60_DW_CONC DFR-FP System 2 Hour Firerated Deck to Wall Split Slab

DFR-FP System 2-Hour Fire-Rated Deck-to-Wall Split Slab with 2 3/8 inch Leg Height 1 1/4 inch | 30mm

Download DWG Download PDF
DFR2_FP_0125_60_DD_CONC DFR-FP System 2 Hour Firerated Deck to Deck Split Slab

DFR-FP System 2-Hour Fire-Rated Deck-to-Deck Split Slab with 2 3/8 inch Leg Height 1 1/4 inch | 30mm

Download DWG Download PDF
DFR2_FP_0125_25_U-90_UPTURN DFR-FP System 2 Hour Firerated Inside Vertical Plane Universal 90

DFR-FP System 2-Hour Fire-Rated Upturn Universal-90 with 1 inch Leg Height 1 1/4 inch | 30mm

Download DWG Download PDF
DFR2_FP_0125_25_HORIZONTAL_TRANS DFR-FP System 2 Hour Firerated Horizontal Transition

DFR-FP System 2-Hour Fire-Rated Filed Fabricated Horizontal Transition with 1 inch Leg Height 1 1/4 inch | 30mm

Download DWG Download PDF
DFR2_FP_0125_25_DW_CONC DFR-FP System 2 Hour Firerated Deck to Wall Split Slab

DFR-FP System 2-Hour Fire-Rated Deck-to-Wall Split Slab with 1 inch Leg Height 1 1/4 inch | 30mm

Download DWG Download PDF
DFR2_FP_0125_25_DD_CONC DFR-FP System 2 Hour Firerated Deck to Deck Split Slab

DFR-FP System 2-Hour Fire-Rated Deck-to-Deck Split Slab with 1 inch Leg Height 1 1/4 inch | 30mm

Download DWG Download PDF
DFR2_FP_0100_75_U-90_UPTURN-DFR-FP-System-2-Hour-Firerated-Inside-Vertical-Plane-Universal-90

DFR-FP System 2-Hour Fire-Rated Upturn Universal-90 with 3 inch Leg Height 1 inch | 25mm

Download DWG Download PDF
DFR2_FP_0100_75_HORIZONTAL_TRANS-DFR-FP-System-2-Hour-Firerated-Horizontal-Transition

DFR-FP System 2-Hour Fire-Rated Filed Fabricated Horizontal Transition with 3 inch Leg Height 1 inch | 25mm

Download DWG Download PDF
DFR2_FP_0100_75_DW_CONC DFR-FP System 2 Hour Firerated Deck to Wall Split Slab

DFR-FP System 2-Hour Fire-Rated Deck-to-Wall Split Slab with 3 inch Leg Height 1 inch | 25mm

Download DWG Download PDF
DFR2_FP_0100_75_DD_CONC DFR-FP System 2 Hour Firerated Deck to Deck Split Slab

DFR-FP System 2-Hour Fire-Rated Deck-to-Deck Split Slab with 3 inch Leg Height 1 inch | 25mm

Download DWG Download PDF
DFR2_FP_0100_60_U-90_UPTURN DFR-FP System 2 Hour Firerated Inside Vertical Plane Universal 90

DFR-FP System 2-Hour Fire-Rated Upturn Universal-90 with 2 3/8 inch Leg Height 1 inch | 25mm

Download DWG Download PDF
DFR2_FP_0100_60_HORIZONTAL_TRANS DFR-FP System 2 Hour Firerated Horizontal Transition

DFR-FP System 2-Hour Fire-Rated Filed Fabricated Horizontal Transition with 2 3/8 inch Leg Height 1 inch | 25mm

Download DWG Download PDF
DFR2_FP_0100_60_DW_CONC DFR-FP System 2 Hour Firerated Deck to Wall Split Slab

DFR-FP System 2-Hour Fire-Rated Deck-to-Wall Split Slab with 2 3/8 inch Leg Height 1 inch | 25mm

Download DWG Download PDF
DFR2_FP_0100_60_DD_CONC DFR-FP System 2 Hour Firerated Deck to Deck Split Slab

DFR-FP System 2-Hour Fire-Rated Deck-to-Deck Split Slab with 2 3/8 inch Leg Height 1 inch | 25mm

Download DWG Download PDF
DFR2_FP_0100_25_U-90_UPTURN DFR-FP System 2 Hour Firerated Inside Vertical Plane Universal 90

DFR-FP System 2-Hour Fire-Rated Upturn Universal-90 with 1 inch Leg Height 1 inch | 25mm

Download DWG Download PDF
DFR2_FP_0100_25_HORIZONTAL_TRANS DFR-FP System 2 Hour Firerated Horizontal Transition

DFR-FP System 2-Hour Fire-Rated Filed Fabricated Horizontal Transition with 1 inch Leg Height 1 inch | 25mm

Download DWG Download PDF
DFR2_FP_0100_25_DW_CONC DFR-FP System 2 Hour Firerated Deck to Wall Split Slab

DFR-FP System 2-Hour Fire-Rated Deck-to-Wall Split Slab with 1 inch Leg Height 1 inch | 25mm

Download DWG Download PDF
DFR2_FP_0100_25_DD_CONC DFR-FP System 2 Hour Firerated Deck to Deck Split Slab

DFR-FP System 2-Hour Fire-Rated Deck-to-Deck Split Slab with 1 inch Leg Height 1 inch | 25mm

Download DWG Download PDF
DFR2_FP_0075_75_U-90_UPTURN DFR-FP System 2 Hour Firerated Inside Vertical Plane Universal 90

DFR-FP System 2-Hour Fire-Rated Upturn Universal-90 with 3 inch Leg Height 3/4 inch | 20mm

Download DWG Download PDF
DFR2_FP_0075_75_HORIZONTAL_TRANS DFR-FP System 2 Hour Firerated Horizontal Transition

DFR-FP System 2-Hour Fire-Rated Filed Fabricated Horizontal Transition with 3 inch Leg Height 3/4 inch | 20mm

Download DWG Download PDF
DFR2_FP_0075_75_DW_CONC DFR-FP System 2 Hour Firerated Deck to Wall Split Slab

DFR-FP System 2-Hour Fire-Rated Deck-to-Wall Split Slab with 3 inch Leg Height 3/4 inch | 20mm

Download DWG Download PDF
DFR2_FP_0075_75_DD_CONC DFR-FP System 2 Hour Firerated Deck to Deck Split Slab

DFR-FP System 2-Hour Fire-Rated Deck-to-Deck Split Slab with 3 inch Leg Height 3/4 inch | 20mm

Download DWG Download PDF
DFR2_FP_0075_60_U-90_UPTURN DFR-FP System 2 Hour Firerated Inside Vertical Plane Universal 90

DFR-FP System 2-Hour Fire-Rated Upturn Universal-90 with 2 3/8 inch Leg Height 3/4 inch | 20mm

Download DWG Download PDF
DFR2_FP_0075_60_HORIZONTAL_TRANS DFR-FP System 2 Hour Firerated Horizontal Transition

DFR-FP System 2-Hour Fire-Rated Filed Fabricated Horizontal Transition with 2 3/8 inch Leg Height 3/4 inch | 20mm

Download DWG Download PDF
DFR2_FP_0075_60_DW_CONC DFR-FP System 2 Hour Firerated Deck to Wall Split Slab

DFR-FP System 2-Hour Fire-Rated Deck-to-Wall Split Slab with 2 3/8 inch Leg Height 3/4 inch | 20mm

Download DWG Download PDF
DFR2_FP_0075_60_DD_CONC DFR-FP System 2 Hour Firerated Deck to Deck Split Slab

DFR-FP System 2-Hour Fire-Rated Deck-to-Deck Split Slab with 2 3/8 inch Leg Height 3/4 inch | 20mm

Download DWG Download PDF
DFR2_FP_0075_25_U-90_UPTURN DFR-FP System 2 Hour Firerated Inside Vertical Plane Universal 90

DFR-FP System 2-Hour Fire-Rated Upturn Universal-90 with 1 inch Leg Height 3/4 inch | 20mm

Download DWG Download PDF
DFR2_FP_0075_25_HORIZONTAL_TRANS DFR-FP System 2 Hour Firerated Horizontal Transition

DFR-FP System 2-Hour Fire-Rated Filed Fabricated Horizontal Transition with 1 inch Leg Height 3/4 inch | 20mm

Download DWG Download PDF
DFR2_FP_0075_25_DW_CONC DFR-FP System 2 Hour Firerated Deck to Wall Split Slab

DFR-FP System 2-Hour Fire-Rated Deck-to-Wall Split Slab with 1 inch Leg Height 3/4 inch | 20mm

Download DWG Download PDF
DFR2_FP_0075_25_DD_CONC DFR-FP System 2 Hour Firerated Deck to Deck Split Slab

DFR-FP System 2-Hour Fire-Rated Deck-to-Deck Split Slab with 1 inch Leg Height 3/4 inch | 20mm

Download DWG Download PDF
DFR2_FP_0063_75_U-90_UPTURN DFR-FP System 2 Hour Firerated Inside Vertical Plane Universal 90

DFR-FP System 2-Hour Fire-Rated Upturn Universal-90 with 3 inch Leg Height 5/8 inch | 15mm

Download DWG Download PDF
DFR2_FP_0063_75_HORIZONTAL_TRANS DFR-FP System 2 Hour Firerated Horizontal Transition

DFR-FP System 2-Hour Fire-Rated Filed Fabricated Horizontal Transition with 3 inch Leg Height 5/8 inch | 15mm

Download DWG Download PDF
DFR2_FP_0063_75_DW_CONC DFR-FP System 2 Hour Firerated Deck to Wall Split Slab

DFR-FP System 2-Hour Fire-Rated Deck-to-Wall Split Slab with 3 inch Leg Height 5/8 inch | 15mm

Download DWG Download PDF
DFR2_FP_0063_75_DD_CONC DFR-FP System 2 Hour Firerated Deck to Deck Split Slab

DFR-FP System 2-Hour Fire-Rated Deck-to-Deck Split Slab with 3 inch Leg Height 5/8 inch | 15mm

Download DWG Download PDF
DFR2_FP_0063_60_U-90_UPTURN DFR-FP System 2 Hour Firerated Inside Vertical Plane Universal 90

DFR-FP System 2-Hour Fire-Rated Upturn Universal-90 with 2 3/8 inch Leg Height 5/8 inch | 15mm

Download DWG Download PDF
DFR2_FP_0063_60_HORIZONTAL_TRANS-DFR-FP-System-2-Hour-Firerated-Horizontal-Transition

DFR-FP System 2-Hour Fire-Rated Filed Fabricated Horizontal Transition with 2 3/8 inch Leg Height 5/8 inch | 15mm

Download DWG Download PDF
DFR2_FP_0063_60_DW_CONC-DFR-FP-System-2-Hour-Firerated-Deck-to-Wall-Split-Slab

DFR-FP System 2-Hour Fire-Rated Deck-to-Wall Split Slab with 2 3/8 inch Leg Height 5/8 inch | 15mm

Download DWG Download PDF
DFR2_FP_0063_60_DD_CONC DFR-FP System 2 Hour Firerated Deck to Deck Split Slab

DFR-FP System 2-Hour Fire-Rated Deck-to-Deck Split Slab with 2 3/8 inch Leg Height 5/8 inch | 15mm

Download DWG Download PDF
DFR2_FP_0063_25_U-90_UPTURN DFR-FP System 2 Hour Firerated Inside Vertical Plane Universal 90

DFR-FP System 2-Hour Fire-Rated Upturn Universal-90 with 1 inch Leg Height 5/8 inch | 15mm

Download DWG Download PDF
DFR2_FP_0063_25_HORIZONTAL_TRANS DFR-FP System 2 Hour Firerated Horizontal Transition

DFR-FP System 2-Hour Fire-Rated Filed Fabricated Horizontal Transition with 1 inch Leg Height 5/8 inch | 15mm

Download DWG Download PDF
DFR2_FP_0063_25_DW_CONC DFR-FP System 2 Hour Firerated Deck to Wall Split Slab

DFR-FP System 2-Hour Fire-Rated Deck-to-Wall Split Slab with 1 inch Leg Height 5/8 inch | 15mm

Download DWG Download PDF
DFR2_FP_0063_25_DD_CONC DFR-FP System 2 Hour Firerated Deck to Deck Split Slab

DFR-FP System 2-Hour Fire-Rated Deck-to-Deck Split Slab with 1 inch Leg Height 5/8 inch | 15mm

Download DWG Download PDF
DFR2_FP_0050_75_U-90_UPTURN DFR-FP System 2 Hour Firerated Inside Vertical Plane Universal 90

DFR-FP System 2-Hour Fire-Rated Upturn Universal-90 with 3 inch Leg Height 1/2 inch | 13mm

Download DWG Download PDF
DFR2_FP_0050_75_HORIZONTAL_TRANS DFR-FP System 2 Hour Firerated Horizontal Transition

DFR-FP System 2-Hour Fire-Rated Filed Fabricated Horizontal Transition with 3 inch Leg Height 1/2 inch | 13mm

Download DWG Download PDF
DFR2_FP_0050_75_DW_CONC DFR-FP System 2 Hour Firerated Deck to Wall Split Slab

DFR-FP System 2-Hour Fire-Rated Deck-to-Wall Split Slab with 3 inch Leg Height 1/2 inch | 13mm

Download DWG Download PDF
DFR2_FP_0050_75_DD_CONC DFR-FP System 2 Hour Firerated Deck to Deck Split Slab

DFR-FP System 2-Hour Fire-Rated Deck-to-Deck Split Slab with 3 inch Leg Height 1/2 inch | 13mm

Download DWG Download PDF
DFR2_FP_0050_60_U-90_UPTURN DFR-FP System 2 Hour Firerated Inside Vertical Plane Universal 90

DFR-FP System 2-Hour Fire-Rated Upturn Universal-90 with 2 3/8 inch Leg Height 1/2 inch | 13mm

Download DWG Download PDF
DFR2_FP_0050_60_HORIZONTAL_TRANS DFR-FP System 2 Hour Firerated Horizontal Transition

DFR-FP System 2-Hour Fire-Rated Filed Fabricated Horizontal Transition with 2 3/8 inch Leg Height 1/2 inch | 13mm

Download DWG Download PDF
DFR2_FP_0050_60_DW_CONC DFR-FP System 2 Hour Firerated Deck to Wall Split Slab

DFR-FP System 2-Hour Fire-Rated Deck-to-Wall Split Slab with 2 3/8 inch Leg Height 1/2 inch | 13mm

Download DWG Download PDF
DFR2_FP_0050_60_DD_CONC DFR-FP System 2 Hour Firerated Deck to Deck Split Slab

DFR-FP System 2-Hour Fire-Rated Deck-to-Deck Split Slab with 2 3/8 inch Leg Height 1/2 inch | 13mm

Download DWG Download PDF
DFR2_FP_0050_25_U-90_UPTURN-DFR-FP-System-2-Hour-Firerated-Inside-Vertical-Plane-Universal-90

DFR-FP System 2-Hour Fire-Rated Upturn Universal-90 with 1 inch Leg Height 1/2 inch | 13mm

Download DWG Download PDF
DFR2_FP_0050_25_HORIZONTAL_TRANS-DFR-FP-System-2-Hour-Firerated-Horizontal-Transition

DFR-FP System 2-Hour Fire-Rated Filed Fabricated Horizontal Transition with 1 inch Leg Height 1/2 inch | 13mm

Download DWG Download PDF
DFR2_FP_0050_25_DW_CONC-DFR-FP-System-2-Hour-Firerated-Deck-to-Wall-Split-Slab

DFR-FP System 2-Hour Fire-Rated Deck-to-Wall Split Slab with 1 inch Leg Height 1/2 inch | 13mm

Download DWG Download PDF
DFR2_FP_0050_25_DD_CONC DFR-FP System 2 Hour Firerated Deck to Deck Split Slab

DFR-FP System 2-Hour Fire-Rated Deck-to-Deck Split Slab with 1 inch Leg Height 1/2 inch | 13mm

Download DWG Download PDF
Expansion Joint Details: DFR-FP Deck-to-Deck with Emcrete Fire-rated Expansion Joint EMSEAL

DFR-FP System 2-Hour Fire-Rated Deck-to-Deck Blockout with Emcrete (Typical)

Download DWG Download PDF
Expansion Joint Detail: SJS-FP-FR2 split slab to solid slab fire-rated Expansion Joint

DFR-FP System 2-Hour Fire-Rated Deck-to-Wall Blockout with Emcrete (Typical)

Download DWG Download PDF
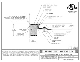
Expansion Joint Details: DFR-FP U-90 Downturn Fire-rated Expansion Joint EMSEAL

DFR-FP System 2-Hour Fire-Rated Downturn Universal-90 (Typical)

Download DWG Download PDF
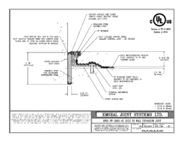
Expansion Joint Details: DFR-FP U-90 Upturn Fire-rated Expansion Joint EMSEAL

DFR-FP System 2-Hour Fire-Rated Upturn Universal-90 with 45 degree Termination (Typical)

Download DWG Download PDF
Expansion Joint Details: DFR-FP U-90 Downturn Fire-rated Expansion Joint EMSEAL

DFR-FP System 2-Hour Fire-Rated Downturn Universal-90 with 45 degree Termination (Typical)

Download DWG Download PDF
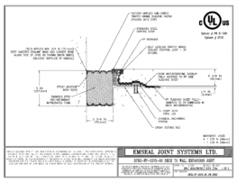
Expansion Joint Details: DFR-FP U-90 Upturn Fire-rated Expansion Joint EMSEAL

DFR-FP System 2-Hour Fire-Rated Upturn Universal-90 (Typical)

Download DWG Download PDF
Expansion Joint Details: DFR-FP Horizontal Transition Fire-rated Expansion Joint EMSEAL

DFR-FP System 2-Hour Fire-Rated Filed Fabricated Horizontal Transition (Typical)

Download DWG Download PDF
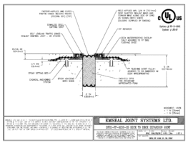
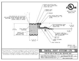
Expansion Joint Detail: SJS-FP-FR2 split slab to solid slab fire-rated Expansion Joint

DFR-FP System 2-Hour Fire-Rated Deck-to-Wall Split Slab (Typical)

Download DWG Download PDF
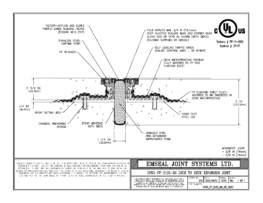
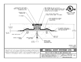
Expansion Joint Details: DFR-FP Deck-to-Deck Fire-rated Expansion Joint EMSEAL

DFR-FP System 2-Hour Fire-Rated Deck-to-Deck Split Slab (Typical)

Download DWG Download PDF

Download DWF Viewer Here

NOTE: The CAD drawings on this site are generic and/or were created to treat project-specific conditions. They may or may not be suitable for your specific project or application. Please consult EMSEAL on the use of any material for any application. Thank you.

The following collection of details is being continuously updated and does not cover all possible conditions. If you don’t see something that closely suits your application, please contact us.

These drawings are intended for use during the specification of EMSEAL products in legitimate Architectural, Engineering and Construction applications. Any misuse or duplication of these copyrighted details for any other purpose, will be vigorously prosecuted.