Watertight Expansion Joints and Construction Sealants by EMSEAL

CAD Library: Emshield® DFR-FP

Joint Sizes with * have 3D .DWF files available.

BIM files are also available for these products in our BIM Library.

Please consult EMSEAL for updates to product configuration and other assembly components.

DFR2_FP_0400_75_U-90_UPTURN DFR-FP System 2 Hour Firerated Inside Vertical Plane Universal 90

DFR-FP System 2-Hour Fire-Rated Upturn Universal-90 with 3 inch Leg Height 4 inch | 100mm

Download DWG Download PDF
DFR2_FP_0400_75_HORIZONTAL_TRANS DFR-FP System 2 Hour Firerated Horizontal Transition

DFR-FP System 2-Hour Fire-Rated Filed Fabricated Horizontal Transition with 3 inch Leg Height 4 inch | 100mm

Download DWG Download PDF
DFR2_FP_0400_75_DW_CONC DFR-FP System 2 Hour Firerated Deck to Wall Split Slab

DFR-FP System 2-Hour Fire-Rated Deck-to-Wall Split Slab with 3 inch Leg Height 4 inch | 100mm

Download DWG Download PDF
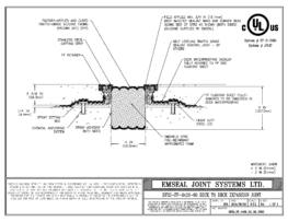
DFR2_FP_0400_75_DD_CONC DFR-FP System 2 Hour Firerated Deck to Deck Split Slab

DFR-FP System 2-Hour Fire-Rated Deck-to-Deck Split Slab with 3 inch Leg Height 4 inch | 100mm

Download DWG Download PDF
DFR2_FP_0400_60_U-90_UPTURN DFR-FP System 2 Hour Firerated Inside Vertical Plane Universal 90

DFR-FP System 2-Hour Fire-Rated Upturn Universal-90 with 2 3/8 inch Leg Height 4 inch | 100mm

Download DWG Download PDF
DFR2_FP_0400_60_HORIZONTAL_TRANS DFR-FP System 2 Hour Firerated Horizontal Transition

DFR-FP System 2-Hour Fire-Rated Filed Fabricated Horizontal Transition with 2 3/8 inch Leg Height 4 inch | 100mm

Download DWG Download PDF
DFR2_FP_0400_60_DW_CONC DFR-FP System 2 Hour Firerated Deck to Wall Split Slab

DFR-FP System 2-Hour Fire-Rated Deck-to-Wall Split Slab with 2 3/8 inch Leg Height 4 inch | 100mm

Download DWG Download PDF
DFR2_FP_0400_60_DD_CONC DFR-FP System 2 Hour Firerated Deck to Deck Split Slab

DFR-FP System 2-Hour Fire-Rated Deck-to-Deck Split Slab with 2 3/8 inch Leg Height 4 inch | 100mm

Download DWG Download PDF
DFR2_FP_0400_25_U-90_UPTURN DFR-FP System 2 Hour Firerated Inside Vertical Plane Universal 90

DFR-FP System 2-Hour Fire-Rated Upturn Universal-90 with 1 inch Leg Height 4 inch | 100mm

Download DWG Download PDF
DFR2_FP_0400_25_HORIZONTAL_TRANS DFR-FP System 2 Hour Firerated Horizontal Transition

DFR-FP System 2-Hour Fire-Rated Filed Fabricated Horizontal Transition with 1 inch Leg Height 4 inch | 100mm

Download DWG Download PDF
DFR2_FP_0400_25_DW_CONC DFR-FP System 2 Hour Firerated Deck to Wall Split Slab

DFR-FP System 2-Hour Fire-Rated Deck-to-Wall Split Slab with 1 inch Leg Height 4 inch | 100mm

Download DWG Download PDF
DFR2_FP_0400_25_DD_CONC DFR-FP System 2 Hour Firerated Deck to Deck Split Slab

DFR-FP System 2-Hour Fire-Rated Deck-to-Deck Split Slab with 1 inch Leg Height 4 inch | 100mm

Download DWG Download PDF

Download DWF Viewer Here

NOTE: The CAD drawings on this site are generic and/or were created to treat project-specific conditions. They may or may not be suitable for your specific project or application. Please consult EMSEAL on the use of any material for any application. Thank you.

The following collection of details is being continuously updated and does not cover all possible conditions. If you don’t see something that closely suits your application, please contact us.

These drawings are intended for use during the specification of EMSEAL products in legitimate Architectural, Engineering and Construction applications. Any misuse or duplication of these copyrighted details for any other purpose, will be vigorously prosecuted.