Watertight Expansion Joints and Construction Sealants by EMSEAL

CAD Library: DSM-FP

Joint Sizes with * have 3D .DWF files available.

BIM files are also available for these products in our BIM Library.

Please consult EMSEAL for updates to product configuration and other assembly components.

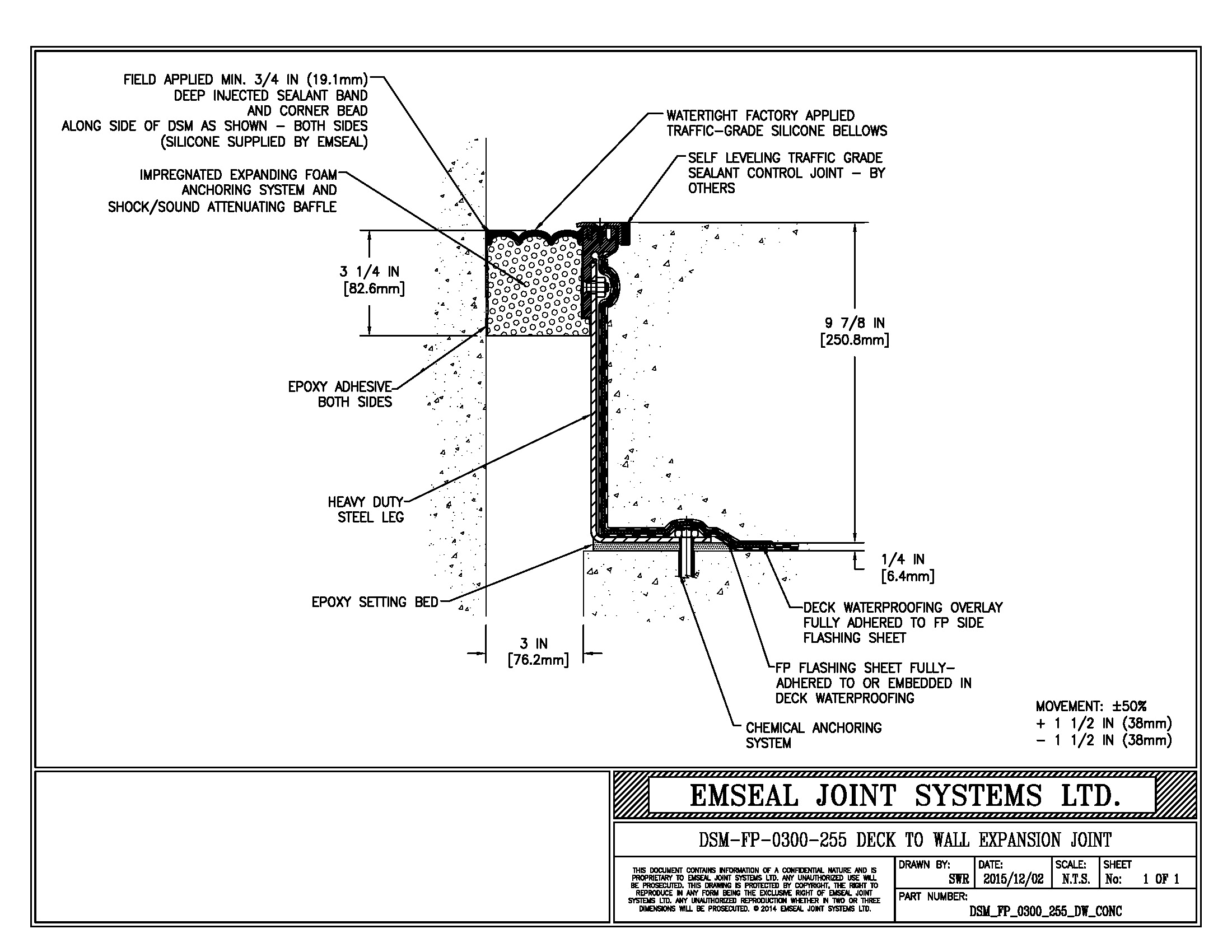
DSM_FP_0300_255_DW_CONC DSM-FP Deck to Wall Watertight Plaza Deck Expansion Joint EMSEAL

DSM-FP System Deck-to-Wall Split Slab with 9 7/8 inch Leg Height 3 inch | 75mm

Download DWG Download PDF
DSM_FP_0300_255_DD_CONC DSM-FP Deck to Deck Watertight Plaza Deck Expansion Joint EMSEAL

DSM-FP System Deck-to-Deck Split Slab with 9 7/8 inch Leg Height 3 inch | 75mm

Download DWG Download PDF

Download DWF Viewer Here

NOTE: The CAD drawings on this site are generic and/or were created to treat project-specific conditions. They may or may not be suitable for your specific project or application. Please consult EMSEAL on the use of any material for any application. Thank you.

The following collection of details is being continuously updated and does not cover all possible conditions. If you don’t see something that closely suits your application, please contact us.

These drawings are intended for use during the specification of EMSEAL products in legitimate Architectural, Engineering and Construction applications. Any misuse or duplication of these copyrighted details for any other purpose, will be vigorously prosecuted.