Watertight Expansion Joints and Construction Sealants by EMSEAL

CAD Library: Horizontal Colorseal

Joint Sizes with * have 3D .DWF files available.

BIM files are also available for these products in our BIM Library.

Please consult EMSEAL for updates to product configuration and other assembly components.

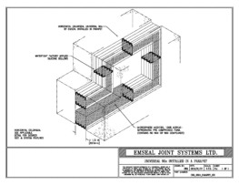
COH_0350_U-90_UPTURN Horizontal Colorseal Universal 90 Upturn

Horizontal Colorseal Upturn Universal-90 3 1/2 inch | 90mm

Download DWG Download PDF
COH_0350_U-90_DOWNTURN Horizontal Colorseal Universal 90 Downturn

Horizontal Colorseal Downturn Universal-90 3 1/2 inch | 90mm

Download DWG Download PDF
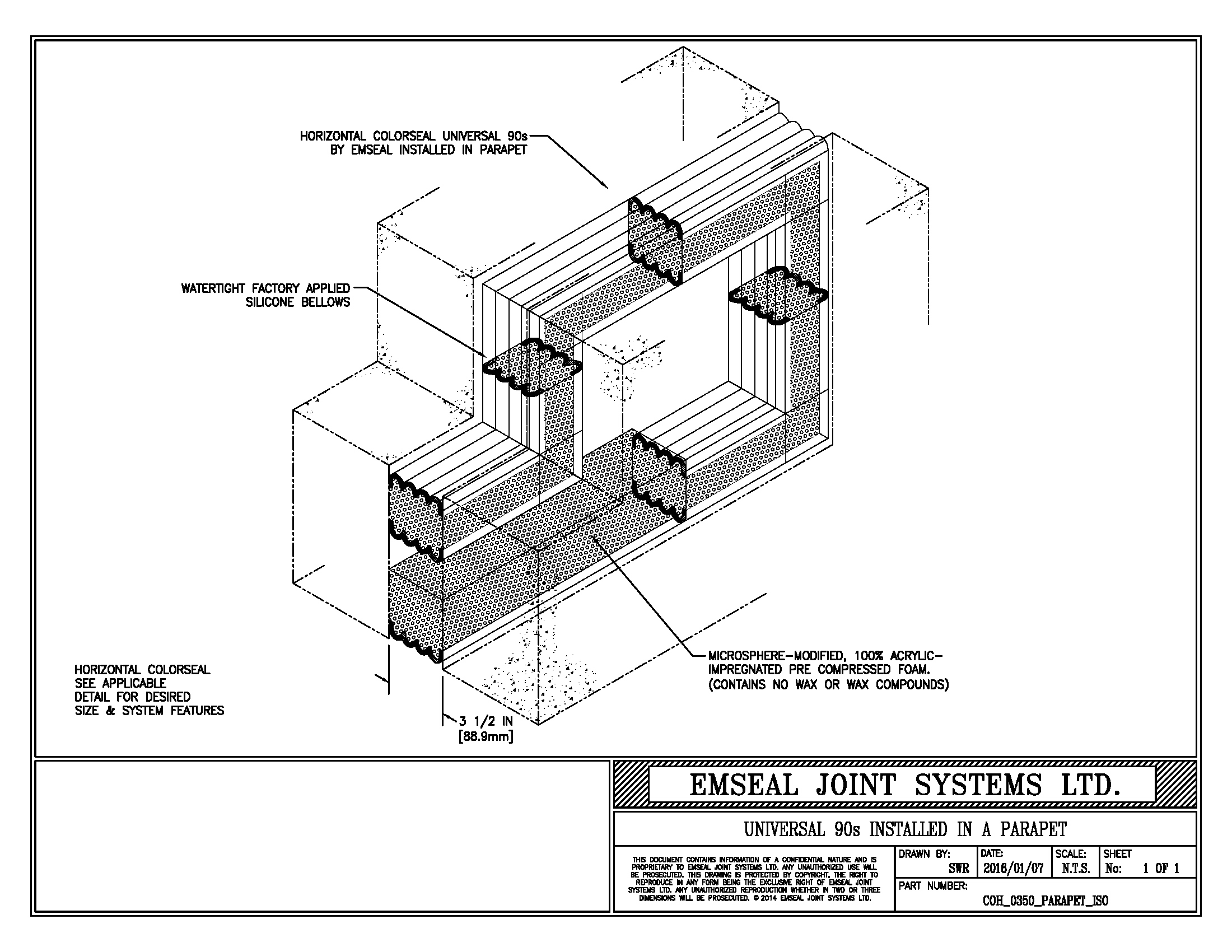
COH_0350_PARAPET_ISO Horizontal Colorseal Watertight Expansion Joint

Horizontal Colorseal Parapet 3 1/2 inch | 90mm

Download DWG Download PDF
COH_0350_DW_CONC Horizontal Colorseal Deck Expansion Joint Deck-to-Wall

Horizontal Colorseal Deck-to-Wall 3 1/2 inch | 90mm

Download DWG Download PDF
COH_0350_DD_CONC Horizontal Colorseal Deck Expansion Joint Deck-to-Deck

Horizontal Colorseal Deck-to-Deck 3 1/2 inch | 90mm

Download DWG Download PDF

Download DWF Viewer Here

NOTE: The CAD drawings on this site are generic and/or were created to treat project-specific conditions. They may or may not be suitable for your specific project or application. Please consult EMSEAL on the use of any material for any application. Thank you.

The following collection of details is being continuously updated and does not cover all possible conditions. If you don’t see something that closely suits your application, please contact us.

These drawings are intended for use during the specification of EMSEAL products in legitimate Architectural, Engineering and Construction applications. Any misuse or duplication of these copyrighted details for any other purpose, will be vigorously prosecuted.