Watertight Expansion Joints and Construction Sealants by EMSEAL

CAD Library: SJS-FP System

Joint Sizes with * have 3D .DWF files available.

BIM files are also available for these products in our BIM Library.

Please consult EMSEAL for updates to product configuration and other assembly components.

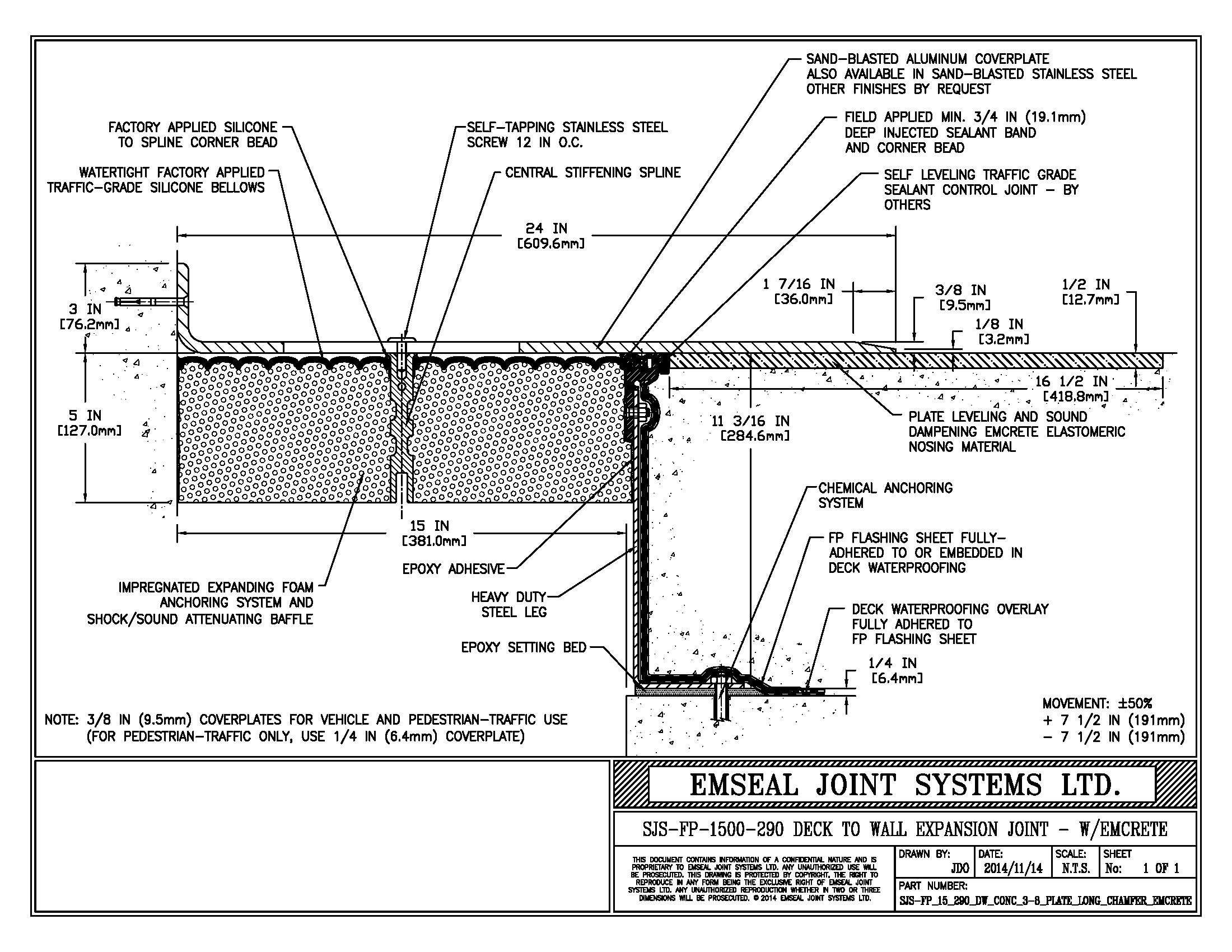
SJS-FP_15_305_DW_CONC_3-8_PLATE_LONG_CHAMFER_EMCRETE Deck to Wall Expansion Joint with Emcrete

SJS-FP Deck-to-Wall with Emcrete — 12 1/8 inch Leg Height and 3/8 inch Coverplate — 15 inch | 375mm

Download DWG Download PDF
SJS-FP_15_305_DD_CONC_3-8_PLATE_LONG_CHAMFER_EMCRETE Deck to Deck Expansion Joint with Emcrete

SJS-FP Deck-to-Deck with Emcrete — 12 1/8 inch Leg Height and 3/8 inch Coverplate — 15 inch | 375mm

Download DWG Download PDF
SJS-FP_15_305_DW_CONC_3-8_PLATE_LONG_CHAMFER Deck to Wall Expansion Joint

SJS-FP Deck-to-Wall — 12 1/8 inch Leg Height and 3/8 inch Coverplate — 15 inch | 375mm

Download DWG Download PDF
SJS-FP_15_305_DD_CONC_3-8_PLATE_LONG_CHAMFER Deck to Deck Expansion Joint

SJS-FP Deck-to-Deck — 12 1/8 inch Leg Height and 3/8 inch Coverplate — 15 inch | 375mm

Download DWG Download PDF
Expansion Joint Details: SJS-FP Deck-to-Wall Plaza Deck Expansion Joint with Emcrete EMSEAL

SJS-FP Deck-to-Wall with Emcrete — 12 1/8 inch Leg Height and 1/4 inch Coverplate — 15 inch | 375mm

Download DWG Download PDF
SJS-FP_15_305_DD_CONC_1-4_PLATE_LONG_CHAMFER_EMCRETE Deck to Deck Expansion Joint with Emcrete

SJS-FP Deck-to-Deck with Emcrete — 12 1/8 inch Leg Height and 1/4 inch Coverplate — 15 inch | 375mm

Download DWG Download PDF
Expansion Joint Details: SJS-FP Deck-to-Wall Plaza Deck Expansion Joint EMSEAL

SJS-FP Deck-to-Wall — 12 1/8 inch Leg Height and 1/4 inch Coverplate — 15 inch | 375mm

Download DWG Download PDF
Expansion Joint Details: SJS-FP Deck-to-Deck Plaza Deck Expansion Joint EMSEAL

SJS-FP Deck-to-Deck — 12 1/8 inch Leg Height and 1/4 inch Coverplate — 15 inch | 375mm

Download DWG Download PDF
SJS-FP_15_290_DW_CONC_3-8_PLATE_LONG_CHAMFER_EMCRETE Deck to Wall Expansion Joint with Emcrete

SJS-FP Deck-to-Wall with Emcrete — 11 1/4 inch Leg Height and 3/8 inch Coverplate — 15 inch | 375mm

Download DWG Download PDF
SJS-FP_15_290_DD_CONC_3-8_PLATE_LONG_CHAMFER_EMCRETE Deck to Deck Expansion Joint with Emcrete

SJS-FP Deck-to-Deck with Emcrete — 11 1/4 inch Leg Height and 3/8 inch Coverplate — 15 inch | 375mm

Download DWG Download PDF
SJS-FP_15_290_DW_CONC_3-8_PLATE_LONG_CHAMFER Deck to Wall Expansion Joint

SJS-FP Deck-to-Wall — 11 1/4 inch Leg Height and 3/8 inch Coverplate — 15 inch | 375mm

Download DWG Download PDF
SJS-FP_15_290_DD_CONC_3-8_PLATE_LONG_CHAMFER Deck to Deck Expansion Joint

SJS-FP Deck-to-Deck — 11 1/4 inch Leg Height and 3/8 inch Coverplate — 15 inch | 375mm

Download DWG Download PDF
SJS-FP_15_290_DW_CONC_1-4_PLATE_LONG_CHAMFER_EMCRETE Deck to Wall Expansion Joint with Emcrete

SJS-FP Deck-to-Wall with Emcrete — 11 1/4 inch Leg Height and 1/4 inch Coverplate — 15 inch | 375mm

Download DWG Download PDF
SJS-FP_15_290_DD_CONC_1-4_PLATE_LONG_CHAMFER_EMCRETE Deck to Deck Expansion Joint with Emcrete

SJS-FP Deck-to-Deck with Emcrete — 11 1/4 inch Leg Height and 1/4 inch Coverplate — 15 inch | 375mm

Download DWG Download PDF
SJS-FP_15_290_DW_CONC_1-4_PLATE_LONG_CHAMFER Deck to Wall Expansion Joint

SJS-FP Deck-to-Wall — 11 1/4 inch Leg Height and 1/4 inch Coverplate — 15 inch | 375mm

Download DWG Download PDF
SJS-FP_15_290_DD_CONC_1-4_PLATE_LONG_CHAMFER Deck to Deck Expansion Joint

SJS-FP Deck-to-Deck — 11 1/4 inch Leg Height and 1/4 inch Coverplate — 15 inch | 375mm

Download DWG Download PDF
SJS-FP_15_270_DW_CONC_3-8_PLATE_LONG_CHAMFER_EMCRETE Deck to Wall Expansion Joint with Emcrete

SJS-FP Deck-to-Wall with Emcrete — 10 1/2 inch Leg Height and 3/8 inch Coverplate — 15 inch | 375mm

Download DWG Download PDF
SJS-FP_15_270_DD_CONC_3-8_PLATE_LONG_CHAMFER_EMCRETE Deck to Deck Expansion Joint with Emcrete

SJS-FP Deck-to-Deck with Emcrete — 10 1/2 inch Leg Height and 3/8 inch Coverplate — 15 inch | 375mm

Download DWG Download PDF
SJS-FP_15_270_DW_CONC_3-8_PLATE_LONG_CHAMFER Deck to Wall Expansion Joint

SJS-FP Deck-to-Wall — 10 1/2 inch Leg Height and 3/8 inch Coverplate — 15 inch | 375mm

Download DWG Download PDF
Expansion Joint Details: SJS-FP Deck-to-Deck Plaza Deck Expansion Joint EMSEAL

SJS-FP Deck-to-Deck — 10 1/2 inch Leg Height and 3/8 inch Coverplate — 15 inch | 375mm

Download DWG Download PDF
SJS-FP_15_270_DW_CONC_1-4_PLATE_LONG_CHAMFER_EMCRETE Deck to Wall Expansion Joint with Emcrete

SJS-FP Deck-to-Wall with Emcrete — 10 1/2 inch Leg Height and 1/4 inch Coverplate — 15 inch | 375mm

Download DWG Download PDF
Expansion Joint Details: SJS-FP Deck-to-Deck Plaza Deck Expansion Joint with Emcrete EMSEAL

SJS-FP Deck-to-Deck with Emcrete — 10 1/2 inch Leg Height and 1/4 inch Coverplate — 15 inch | 375mm

Download DWG Download PDF
SJS-FP_15_270_DW_CONC_1-4_PLATE_LONG_CHAMFER Deck to Wall Expansion Joint

SJS-FP Deck-to-Wall — 10 1/2 inch Leg Height and 1/4 inch Coverplate — 15 inch | 375mm

Download DWG Download PDF
SJS-FP_15_270_DD_CONC_1-4_PLATE_LONG_CHAMFER Deck to Deck Expansion Joint

SJS-FP Deck-to-Deck — 10 1/2 inch Leg Height and 1/4 inch Coverplate — 15 inch | 375mm

Download DWG Download PDF
SJS-FP_15_255_DW_CONC_3-8_PLATE_LONG_CHAMFER_EMCRETE Deck to Wall Expansion Joint with Emcrete

SJS-FP Deck-to-Wall with Emcrete — 9 7/8 inch Leg Height and 3/8 inch Coverplate — 15 inch | 375mm

Download DWG Download PDF
SJS-FP_15_255_DD_CONC_3-8_PLATE_LONG_CHAMFER_EMCRETE Deck to Deck Expansion Joint with Emcrete

SJS-FP Deck-to-Deck with Emcrete — 9 7/8 inch Leg Height and 3/8 inch Coverplate — 15 inch | 375mm

Download DWG Download PDF
SJS-FP_15_255_DW_CONC_3-8_PLATE_LONG_CHAMFER Deck to Wall Expansion Joint

SJS-FP Deck-to-Wall — 9 7/8 inch Leg Height and 3/8 inch Coverplate — 15 inch | 375mm

Download DWG Download PDF
SJS-FP_15_255_DD_CONC_3-8_PLATE_LONG_CHAMFER Deck to Deck Expansion Joint

SJS-FP Deck-to-Deck — 9 7/8 inch Leg Height and 3/8 inch Coverplate — 15 inch | 375mm

Download DWG Download PDF
Expansion Joint Details: SJS-FP Deck-to-Wall Plaza Deck Expansion Joint with Emcrete EMSEAL

SJS-FP Deck-to-Wall with Emcrete — 9 7/8 inch Leg Height and 1/4 inch Coverplate — 15 inch | 375mm

Download DWG Download PDF
SJS-FP_15_255_DD_CONC_1-4_PLATE_LONG_CHAMFER_EMCRETE Deck to Deck Expansion Joint with Emcrete

SJS-FP Deck-to-Deck with Emcrete — 9 7/8 inch Leg Height and 1/4 inch Coverplate — 15 inch | 375mm

Download DWG Download PDF
SJS-FP_15_255_DW_CONC_1-4_PLATE_LONG_CHAMFER Deck to Wall Expansion Joint

SJS-FP Deck-to-Wall — 9 7/8 inch Leg Height and 1/4 inch Coverplate — 15 inch | 375mm

Download DWG Download PDF
Expansion Joint Details: SJS-FP Deck-to-Deck Plaza Deck Expansion Joint EMSEAL

SJS-FP Deck-to-Deck — 9 7/8 inch Leg Height and 1/4 inch Coverplate — 15 inch | 375mm

Download DWG Download PDF
SJS-FP_15_235_DW_CONC_3-8_PLATE_LONG_CHAMFER_EMCRETE Deck to Wall Expansion Joint with Emcrete

SJS-FP Deck-to-Wall with Emcrete — 9 1/8 inch Leg Height and 3/8 inch Coverplate — 15 inch | 375mm

Download DWG Download PDF
SJS-FP_15_235_DD_CONC_3-8_PLATE_LONG_CHAMFER_EMCRETE Deck to Deck Expansion Joint with Emcrete

SJS-FP Deck-to-Deck with Emcrete — 9 1/8 inch Leg Height and 3/8 inch Coverplate — 15 inch | 375mm

Download DWG Download PDF
SJS-FP_15_235_DW_CONC_3-8_PLATE_LONG_CHAMFER Deck to Wall Expansion Joint

SJS-FP Deck-to-Wall — 9 1/8 inch Leg Height and 3/8 inch Coverplate — 15 inch | 375mm

Download DWG Download PDF
SJS-FP_15_235_DD_CONC_3-8_PLATE_LONG_CHAMFER Deck to Deck Expansion Joint

SJS-FP Deck-to-Deck — 9 1/8 inch Leg Height and 3/8 inch Coverplate — 15 inch | 375mm

Download DWG Download PDF
SJS-FP_15_235_DW_CONC_1-4_PLATE_LONG_CHAMFER_EMCRETE Deck to Wall Expansion Joint with Emcrete

SJS-FP Deck-to-Wall with Emcrete — 9 1/8 inch Leg Height and 1/4 inch Coverplate — 15 inch | 375mm

Download DWG Download PDF
Expansion Joint Details: SJS-FP Deck-to-Deck Plaza Deck Expansion Joint with Emcrete EMSEAL

SJS-FP Deck-to-Deck with Emcrete — 9 1/8 inch Leg Height and 1/4 inch Coverplate — 15 inch | 375mm

Download DWG Download PDF
SJS-FP_15_235_DW_CONC_1-4_PLATE_LONG_CHAMFER Deck to Wall Expansion Joint

SJS-FP Deck-to-Wall — 9 1/8 inch Leg Height and 1/4 inch Coverplate — 15 inch | 375mm

Download DWG Download PDF
Expansion Joint Details: SJS-FP Deck-to-Deck Plaza Deck Expansion Joint EMSEAL

SJS-FP Deck-to-Deck — 9 1/8 inch Leg Height and 1/4 inch Coverplate — 15 inch | 375mm

Download DWG Download PDF
SJS-FP_15_220_DW_CONC_3-8_PLATE_LONG_CHAMFER_EMCRETE Deck to Wall Expansion Joint with Emcrete

SJS-FP Deck-to-Wall with Emcrete — 8 1/2 inch Leg Height and 3/8 inch Coverplate — 15 inch | 375mm

Download DWG Download PDF
SJS-FP_15_220_DD_CONC_3-8_PLATE_LONG_CHAMFER_EMCRETE Deck to Deck Expansion Joint with Emcrete

SJS-FP Deck-to-Deck with Emcrete — 8 1/2 inch Leg Height and 3/8 inch Coverplate — 15 inch | 375mm

Download DWG Download PDF
SJS-FP_15_220_DW_CONC_3-8_PLATE_LONG_CHAMFER Deck to Wall Expansion Joint

SJS-FP Deck-to-Wall — 8 1/2 inch Leg Height and 3/8 inch Coverplate — 15 inch | 375mm

Download DWG Download PDF
Expansion Joint Details: SJS-FP Deck-to-Deck Plaza Deck Expansion Joint EMSEAL

SJS-FP Deck-to-Deck — 8 1/2 inch Leg Height and 3/8 inch Coverplate — 15 inch | 375mm

Download DWG Download PDF
SJS-FP_15_220_DW_CONC_1-4_PLATE_LONG_CHAMFER_EMCRETE Deck to Wall Expansion Joint with Emcrete

SJS-FP Deck-to-Wall with Emcrete — 8 1/2 inch Leg Height and 1/4 inch Coverplate — 15 inch | 375mm

Download DWG Download PDF
Expansion Joint Details: SJS-FP Deck-to-Deck Plaza Deck Expansion Joint with Emcrete EMSEAL

SJS-FP Deck-to-Deck with Emcrete — 8 1/2 inch Leg Height and 1/4 inch Coverplate — 15 inch | 375mm

Download DWG Download PDF
SJS-FP_15_220_DW_CONC_1-4_PLATE_LONG_CHAMFER Deck to Wall Expansion Joint

SJS-FP Deck-to-Wall — 8 1/2 inch Leg Height and 1/4 inch Coverplate — 15 inch | 375mm

Download DWG Download PDF
SJS-FP_15_220_DD_CONC_1-4_PLATE_LONG_CHAMFER Deck to Deck Expansion Joint

SJS-FP Deck-to-Deck — 8 1/2 inch Leg Height and 1/4 inch Coverplate — 15 inch | 375mm

Download DWG Download PDF
Expansion Joint Details: SJS-FP Deck-to-Wall Plaza Deck Expansion Joint with Emcrete EMSEAL

SJS-FP Deck-to-Wall with Emcrete — 8 inch Leg Height and 3/8 inch Coverplate — 15 inch | 375mm

Download DWG Download PDF
SJS-FP_15_200_DD_CONC_3-8_PLATE_LONG_CHAMFER_EMCRETE Deck to Deck Expansion Joint with Emcrete

SJS-FP Deck-to-Deck with Emcrete — 8 inch Leg Height and 3/8 inch Coverplate — 15 inch | 375mm

Download DWG Download PDF
SJS-FP_15_200_DW_CONC_3-8_PLATE_LONG_CHAMFER Deck to Wall Expansion Joint

SJS-FP Deck-to-Wall — 8 inch Leg Height and 3/8 inch Coverplate — 15 inch | 375mm

Download DWG Download PDF
SJS-FP_15_200_DD_CONC_3-8_PLATE_LONG_CHAMFER Deck to Deck Expansion Joint

SJS-FP Deck-to-Deck — 8 inch Leg Height and 3/8 inch Coverplate — 15 inch | 375mm

Download DWG Download PDF
SJS-FP_15_200_DW_CONC_1-4_PLATE_LONG_CHAMFER_EMCRETE Deck to Wall Expansion Joint with Emcrete

SJS-FP Deck-to-Wall with Emcrete — 8 inch Leg Height and 1/4 inch Coverplate — 15 inch | 375mm

Download DWG Download PDF
Expansion Joint Details: SJS-FP Deck-to-Deck Plaza Deck Expansion Joint with Emcrete EMSEAL

SJS-FP Deck-to-Deck with Emcrete — 8 inch Leg Height and 1/4 inch Coverplate — 15 inch | 375mm

Download DWG Download PDF
SJS-FP_15_200_DW_CONC_1-4_PLATE_LONG_CHAMFER Deck to Wall Expansion Joint

SJS-FP Deck-to-Wall — 8 inch Leg Height and 1/4 inch Coverplate — 15 inch | 375mm

Download DWG Download PDF
SJS-FP_15_200_DD_CONC_1-4_PLATE_LONG_CHAMFER Deck to Deck Expansion Joint

SJS-FP Deck-to-Deck — 8 inch Leg Height and 1/4 inch Coverplate — 15 inch | 375mm

Download DWG Download PDF
SJS-FP_15_185_DW_CONC_3-8_PLATE_LONG_CHAMFER_EMCRETE Deck to Wall Expansion Joint with Emcrete

SJS-FP Deck-to-Wall with Emcrete — 7 1/4 inch Leg Height and 3/8 inch Coverplate — 15 inch | 375mm

Download DWG Download PDF
SJS-FP_15_185_DD_CONC_3-8_PLATE_LONG_CHAMFER_EMCRETE Deck to Deck Expansion Joint with Emcrete

SJS-FP Deck-to-Deck with Emcrete — 7 1/4 inch Leg Height and 3/8 inch Coverplate — 15 inch | 375mm

Download DWG Download PDF
SJS-FP_15_185_DW_CONC_3-8_PLATE_LONG_CHAMFER Deck to Wall Expansion Joint

SJS-FP Deck-to-Wall — 7 1/4 inch Leg Height and 3/8 inch Coverplate — 15 inch | 375mm

Download DWG Download PDF
Expansion Joint Details: SJS-FP Deck-to-Deck Plaza Deck Expansion Joint EMSEAL

SJS-FP Deck-to-Deck — 7 1/4 inch Leg Height and 3/8 inch Coverplate — 15 inch | 375mm

Download DWG Download PDF
SJS-FP_15_185_DW_CONC_1-4_PLATE_LONG_CHAMFER_EMCRETE Deck to Wall Expansion Joint with Emcrete

SJS-FP Deck-to-Wall with Emcrete — 7 1/4 inch Leg Height and 1/4 inch Coverplate — 15 inch | 375mm

Download DWG Download PDF
Expansion Joint Details: SJS-FP Deck-to-Deck Plaza Deck Expansion Joint with Emcrete EMSEAL

SJS-FP Deck-to-Deck with Emcrete — 7 1/4 inch Leg Height and 1/4 inch Coverplate — 15 inch | 375mm

Download DWG Download PDF
SJS-FP_15_185_DW_CONC_1-4_PLATE_LONG_CHAMFER Deck to Wall Expansion Joint

SJS-FP Deck-to-Wall — 7 1/4 inch Leg Height and 1/4 inch Coverplate — 15 inch | 375mm

Download DWG Download PDF
SJS-FP_15_185_DD_CONC_1-4_PLATE_LONG_CHAMFER Deck to Deck Expansion Joint

SJS-FP Deck-to-Deck — 7 1/4 inch Leg Height and 1/4 inch Coverplate — 15 inch | 375mm

Download DWG Download PDF
Expansion Joint Details: SJS-FP Deck-to-Wall Plaza Deck Expansion Joint with Emcrete EMSEAL

SJS-FP Deck-to-Wall with Emcrete — 6 1/2 inch Leg Height and 3/8 inch Coverplate — 15 inch | 375mm

Download DWG Download PDF
SJS-FP_15_165_DD_CONC_3-8_PLATE_LONG_CHAMFER_EMCRETE Deck to Deck Expansion Joint with Emcrete

SJS-FP Deck-to-Deck with Emcrete — 6 1/2 inch Leg Height and 3/8 inch Coverplate — 15 inch | 375mm

Download DWG Download PDF
SJS-FP_15_165_DW_CONC_3-8_PLATE_LONG_CHAMFER Deck to Wall Expansion Joint

SJS-FP Deck-to-Wall — 6 1/2 inch Leg Height and 3/8 inch Coverplate — 15 inch | 375mm

Download DWG Download PDF
SJS-FP_15_165_DD_CONC_3-8_PLATE_LONG_CHAMFER Deck to Deck Expansion Joint

SJS-FP Deck-to-Deck — 6 1/2 inch Leg Height and 3/8 inch Coverplate — 15 inch | 375mm

Download DWG Download PDF
SJS-FP_15_165_DD_CONC_1-4_PLATE_LONG_CHAMFER_EMCRETE Deck to Deck Expansion Joint with Emcrete

SJS-FP Deck-to-Wall with Emcrete — 6 1/2 inch Leg Height and 1/4 inch Coverplate — 15 inch | 375mm

Download DWG Download PDF
SJS-FP_15_165_DD_CONC_1-4_PLATE_LONG_CHAMFER_EMCRETE Deck to Deck Expansion Joint with Emcrete

SJS-FP Deck-to-Deck with Emcrete — 6 1/2 inch Leg Height and 1/4 inch Coverplate — 15 inch | 375mm

Download DWG Download PDF
SJS-FP_15_165_DW_CONC_1-4_PLATE_LONG_CHAMFER Deck to Wall Expansion Joint

SJS-FP Deck-to-Wall — 6 1/2 inch Leg Height and 1/4 inch Coverplate — 15 inch | 375mm

Download DWG Download PDF
SJS-FP_15_165_DD_CONC_1-4_PLATE_LONG_CHAMFER Deck to Deck Expansion Joint

SJS-FP Deck-to-Deck — 6 1/2 inch Leg Height and 1/4 inch Coverplate — 15 inch | 375mm

Download DWG Download PDF
SJS-FP_15_150_DW_CONC_3-8_PLATE_LONG_CHAMFER_EMCRETE Deck to Wall Expansion Joint with Emcrete

SJS-FP Deck-to-Wall with Emcrete — 6 inch Leg Height and 3/8 inch Coverplate — 15 inch | 375mm

Download DWG Download PDF
SJS-FP_15_150_DD_CONC_3-8_PLATE_LONG_CHAMFER_EMCRETE Deck to Deck Expansion Joint with Emcrete

SJS-FP Deck-to-Deck with Emcrete — 6 inch Leg Height and 3/8 inch Coverplate — 15 inch | 375mm

Download DWG Download PDF
SJS-FP_15_150_DW_CONC_3-8_PLATE_LONG_CHAMFER Deck to Wall Expansion Joint

SJS-FP Deck-to-Wall — 6 inch Leg Height and 3/8 inch Coverplate — 15 inch | 375mm

Download DWG Download PDF
SJS-FP_15_150_DD_CONC_3-8_PLATE_LONG_CHAMFER Deck to Deck Expansion Joint

SJS-FP Deck-to-Deck — 6 inch Leg Height and 3/8 inch Coverplate — 15 inch | 375mm

Download DWG Download PDF
SJS-FP_15_150_DW_CONC_1-4_PLATE_LONG_CHAMFER_EMCRETE Deck to Wall Expansion Joint with Emcrete

SJS-FP Deck-to-Wall with Emcrete — 6 inch Leg Height and 1/4 inch Coverplate — 15 inch | 375mm

Download DWG Download PDF
SJS-FP_15_150_DD_CONC_1-4_PLATE_LONG_CHAMFER_EMCRETE Deck to Deck Expansion Joint with Emcrete

SJS-FP Deck-to-Deck with Emcrete — 6 inch Leg Height and 1/4 inch Coverplate — 15 inch | 375mm

Download DWG Download PDF
Expansion Joint Details: SJS-FP Deck-to-Wall Plaza Deck Expansion Joint EMSEAL

SJS-FP Deck-to-Wall — 6 inch Leg Height and 1/4 inch Coverplate — 15 inch | 375mm

Download DWG Download PDF
Expansion Joint Details: SJS-FP Deck-to-Deck Plaza Deck Expansion Joint EMSEAL

SJS-FP Deck-to-Deck — 6 inch Leg Height and 1/4 inch Coverplate — 15 inch | 375mm

Download DWG Download PDF
SJS-FP_15_130_DW_CONC_3-8_PLATE_LONG_CHAMFER_EMCRETE Deck to Wall Expansion Joint with Emcrete

SJS-FP Deck-to-Wall with Emcrete — 5 1/8 inch Leg Height and 3/8 inch Coverplate — 15 inch | 375mm

Download DWG Download PDF
SJS-FP_15_130_DD_CONC_3-8_PLATE_LONG_CHAMFER_EMCRETE Deck to Deck Expansion Joint with Emcrete

SJS-FP Deck-to-Deck with Emcrete — 5 1/8 inch Leg Height and 3/8 inch Coverplate — 15 inch | 375mm

Download DWG Download PDF
SJS-FP_15_130_DW_CONC_3-8_PLATE_LONG_CHAMFER Deck to Wall Expansion Joint

SJS-FP Deck-to-Wall — 5 1/8 inch Leg Height and 3/8 inch Coverplate — 15 inch | 375mm

Download DWG Download PDF
SJS-FP_15_130_DD_CONC_3-8_PLATE_LONG_CHAMFER Deck to Deck Expansion Joint

SJS-FP Deck-to-Deck — 5 1/8 inch Leg Height and 3/8 inch Coverplate — 15 inch | 375mm

Download DWG Download PDF
Expansion Joint Details: SJS-FP Deck-to-Wall Plaza Deck Expansion Joint with Emcrete EMSEAL

SJS-FP Deck-to-Wall with Emcrete — 5 1/8 inch Leg Height and 1/4 inch Coverplate — 15 inch | 375mm

Download DWG Download PDF
SJS-FP_15_130_DD_CONC_1-4_PLATE_LONG_CHAMFER_EMCRETE Deck to Deck Expansion Joint with Emcrete

SJS-FP Deck-to-Deck with Emcrete — 5 1/8 inch Leg Height and 1/4 inch Coverplate — 15 inch | 375mm

Download DWG Download PDF
SJS-FP_15_130_DW_CONC_1-4_PLATE_LONG_CHAMFER Deck to Wall Expansion Joint

SJS-FP Deck-to-Wall — 5 1/8 inch Leg Height and 1/4 inch Coverplate — 15 inch | 375mm

Download DWG Download PDF
SJS-FP_15_130_DD_CONC_1-4_PLATE_LONG_CHAMFER Deck to Deck Expansion Joint

SJS-FP Deck-to-Deck — 5 1/8 inch Leg Height and 1/4 inch Coverplate — 15 inch | 375mm

Download DWG Download PDF
Expansion Joint Details: SJS-FP Deck-to-Wall Plaza Deck Expansion Joint with Emcrete EMSEAL

SJS-FP Deck-to-Wall with Emcrete — 4 1/2 inch Leg Height and 3/8 inch Coverplate — 15 inch | 375mm

Download DWG Download PDF
Expansion Joint Details: SJS-FP Deck-to-Deck Plaza Deck Expansion Joint with Emcrete EMSEAL

SJS-FP Deck-to-Deck with Emcrete — 4 1/2 inch Leg Height and 3/8 inch Coverplate — 15 inch | 375mm

Download DWG Download PDF

SJS-FP Deck-to-Wall — 4 1/2 inch Leg Height and 3/8 inch Coverplate — 15 inch | 375mm

Download DWG Download PDF
SJS-FP_15_115_DD_CONC_3-8_PLATE_LONG_CHAMFER Deck to Deck Expansion Joint

SJS-FP Deck-to-Deck — 4 1/2 inch Leg Height and 3/8 inch Coverplate — 15 inch | 375mm

Download DWG Download PDF
SJS-FP_15_115_DW_CONC_1-4_PLATE_LONG_CHAMFER_EMCRETE Deck to Wall Expansion Joint with Emcrete

SJS-FP Deck-to-Wall with Emcrete — 4 1/2 inch Leg Height and 1/4 inch Coverplate — 15 inch | 375mm

Download DWG Download PDF
SJS-FP_15_115_DD_CONC_1-4_PLATE_LONG_CHAMFER_EMCRETE Deck to Deck Expansion Joint with Emcrete

SJS-FP Deck-to-Deck with Emcrete — 4 1/2 inch Leg Height and 1/4 inch Coverplate — 15 inch | 375mm

Download DWG Download PDF
Expansion Joint Details: SJS-FP Deck-to-Wall Plaza Deck Expansion Joint EMSEAL

SJS-FP Deck-to-Wall — 4 1/2 inch Leg Height and 1/4 inch Coverplate — 15 inch | 375mm

Download DWG Download PDF
Expansion Joint Details: SJS-FP Deck-to-Deck Plaza Deck Expansion Joint EMSEAL

SJS-FP Deck-to-Deck — 4 1/2 inch Leg Height and 1/4 inch Coverplate — 15 inch | 375mm

Download DWG Download PDF
SJS-FP_15_95_DW_CONC_3-8_PLATE_LONG_CHAMFER_EMCRETE Deck to Wall Expansion Joint with Emcrete

SJS-FP Deck-to-Wall with Emcrete — 3 3/4 inch Leg Height and 3/8 inch Coverplate — 15 inch | 375mm

Download DWG Download PDF
SJS-FP_15_95_DD_CONC_3-8_PLATE_LONG_CHAMFER_EMCRETE Deck to Deck Expansion Joint with Emcrete

SJS-FP Deck-to-Deck with Emcrete — 3 3/4 inch Leg Height and 3/8 inch Coverplate — 15 inch | 375mm

Download DWG Download PDF
SJS-FP_15_95_DW_CONC_3-8_PLATE_LONG_CHAMFER Deck to Wall Expansion Joint

SJS-FP Deck-to-Wall — 3 3/4 inch Leg Height and 3/8 inch Coverplate — 15 inch | 375mm

Download DWG Download PDF
Expansion Joint Details: SJS-FP Deck-to-Deck Plaza Deck Expansion Joint EMSEAL

SJS-FP Deck-to-Deck — 3 3/4 inch Leg Height and 3/8 inch Coverplate — 15 inch | 375mm

Download DWG Download PDF
SJS-FP_15_95_DW_CONC_1-4_PLATE_LONG_CHAMFER_EMCRETE Deck to Wall Expansion Joint with Emcrete

SJS-FP Deck-to-Wall with Emcrete — 3 3/4 inch Leg Height and 1/4 inch Coverplate — 15 inch | 375mm

Download DWG Download PDF
SJS-FP_15_95_DD_CONC_1-4_PLATE_LONG_CHAMFER_EMCRETE Deck to Deck Expansion Joint with Emcrete

SJS-FP Deck-to-Deck with Emcrete — 3 3/4 inch Leg Height and 1/4 inch Coverplate — 15 inch | 375mm

Download DWG Download PDF
SJS-FP_15_95_DW_CONC_1-4_PLATE_LONG_CHAMFER Deck to Wall Expansion Joint

SJS-FP Deck-to-Wall — 3 3/4 inch Leg Height and 1/4 inch Coverplate — 15 inch | 375mm

Download DWG Download PDF
SJS-FP_15_95_DD_CONC_1-4_PLATE_LONG_CHAMFER Deck to Deck Expansion Joint

SJS-FP Deck-to-Deck — 3 3/4 inch Leg Height and 1/4 inch Coverplate — 15 inch | 375mm

Download DWG Download PDF
SJS-FP_15_80_DW_CONC_3-8_PLATE_LONG_CHAMFER_EMCRETE Deck to Wall Expansion Joint with Emcrete

SJS-FP Deck-to-Wall with Emcrete — 3 1/8 inch Leg Height and 3/8 inch Coverplate — 15 inch | 375mm

Download DWG Download PDF
SJS-FP_15_80_DD_CONC_3-8_PLATE_LONG_CHAMFER_EMCRETE Deck to Deck Expansion Joint with Emcrete

SJS-FP Deck-to-Deck with Emcrete — 3 1/8 inch Leg Height and 3/8 inch Coverplate — 15 inch | 375mm

Download DWG Download PDF
SJS-FP_15_80_DW_CONC_3-8_PLATE_LONG_CHAMFER Deck to Wall Expansion Joint

SJS-FP Deck-to-Wall — 3 1/8 inch Leg Height and 3/8 inch Coverplate — 15 inch | 375mm

Download DWG Download PDF
SJS-FP_15_80_DD_CONC_3-8_PLATE_LONG_CHAMFER Deck to Deck Expansion Joint

SJS-FP Deck-to-Deck — 3 1/8 inch Leg Height and 3/8 inch Coverplate — 15 inch | 375mm

Download DWG Download PDF
SJS-FP_15_80_DW_CONC_1-4_PLATE_LONG_CHAMFER_EMCRETE Deck to Wall Expansion Joint with Emcrete

SJS-FP Deck-to-Wall with Emcrete — 3 1/8 inch Leg Height and 1/4 inch Coverplate — 15 inch | 375mm

Download DWG Download PDF
Expansion Joint Details: SJS-FP Deck-to-Deck Plaza Deck Expansion Joint with Emcrete EMSEAL

SJS-FP Deck-to-Deck with Emcrete — 3 1/8 inch Leg Height and 1/4 inch Coverplate — 15 inch | 375mm

Download DWG Download PDF
SJS-FP_15_80_DW_CONC_1-4_PLATE_LONG_CHAMFER Deck to Wall Expansion Joint

SJS-FP Deck-to-Wall — 3 1/8 inch Leg Height and 1/4 inch Coverplate — 15 inch | 375mm

Download DWG Download PDF
SJS-FP_15_80_DD_CONC_1-4_PLATE_LONG_CHAMFER-Deck-to-Deck-Expansion-Joint

SJS-FP Deck-to-Deck — 3 1/8 inch Leg Height and 1/4 inch Coverplate — 15 inch | 375mm

Download DWG Download PDF
Expansion Joint Details: SJS-FP Deck-to-Wall Plaza Deck Expansion Joint with Emcrete EMSEAL

SJS-FP Deck-to-Wall with Emcrete — 2 3/8 inch Leg Height and 3/8 inch Coverplate — 15 inch | 375mm

Download DWG Download PDF
Expansion Joint Details: SJS-FP Deck-to-Deck Plaza Deck Expansion Joint with Emcrete EMSEAL

SJS-FP Deck-to-Deck with Emcrete — 2 3/8 inch Leg Height and 3/8 inch Coverplate — 15 inch | 375mm

Download DWG Download PDF
SJS-FP_15_60_DW_CONC_3-8_PLATE_LONG_CHAMFER Deck to Wall Expansion Joint

SJS-FP Deck-to-Wall — 2 3/8 inch Leg Height and 3/8 inch Coverplate — 15 inch | 375mm

Download DWG Download PDF
SJS-FP_15_60_DD_CONC_3-8_PLATE_LONG_CHAMFER Deck to Deck Expansion Joint

SJS-FP Deck-to-Deck — 2 3/8 inch Leg Height and 3/8 inch Coverplate — 15 inch | 375mm

Download DWG Download PDF
SJS-FP_15_60_DW_CONC_1-4_PLATE_LONG_CHAMFER_EMCRETE Deck to Wall Expansion Joint with Emcrete

SJS-FP Deck-to-Wall with Emcrete — 2 3/8 inch Leg Height and 1/4 inch Coverplate — 15 inch | 375mm

Download DWG Download PDF
SJS-FP_15_60_DW_CONC_1-4_PLATE_LONG_CHAMFER Deck to Wall Expansion Joint

SJS-FP Deck-to-Deck with Emcrete — 2 3/8 inch Leg Height and 1/4 inch Coverplate — 15 inch | 375mm

Download DWG Download PDF
SJS-FP_15_60_DW_CONC_1-4_PLATE_LONG_CHAMFER Deck to Wall Expansion Joint

SJS-FP Deck-to-Wall — 2 3/8 inch Leg Height and 1/4 inch Coverplate — 15 inch | 375mm

Download DWG Download PDF
SJS-FP_15_60_DD_CONC_1-4_PLATE_LONG_CHAMFER Deck to Deck Expansion Joint

SJS-FP Deck-to-Deck — 2 3/8 inch Leg Height and 1/4 inch Coverplate — 15 inch | 375mm

Download DWG Download PDF

Download DWF Viewer Here

NOTE: The CAD drawings on this site are generic and/or were created to treat project-specific conditions. They may or may not be suitable for your specific project or application. Please consult EMSEAL on the use of any material for any application. Thank you.

The following collection of details is being continuously updated and does not cover all possible conditions. If you don’t see something that closely suits your application, please contact us.

These drawings are intended for use during the specification of EMSEAL products in legitimate Architectural, Engineering and Construction applications. Any misuse or duplication of these copyrighted details for any other purpose, will be vigorously prosecuted.